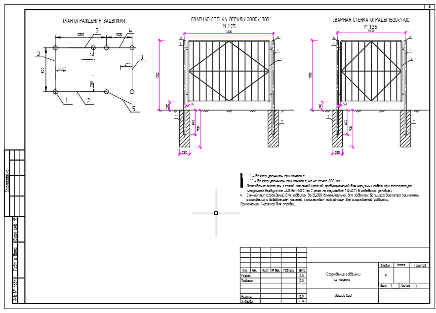
Ограждение задвижки из прутка для защиты от несанкционированного доступа к устройству
- Главная -
- Чертежи -
- Инженерные системы -
- Газоснабжение -
- Ограждение задвижки из прутка
Ограждение задвижки из прутка
0
0
32
0
0
20
Сообщить о проблеме
Автор
Дата
10.03.2026
Язык
Русский
Состав
Раздел АР ограждения
Софт
AutoCAD 19
Как открыть?
Отзывов пока нет
Содержимое архива
-
Ограждение задвижки из прутка.dwg
Чтобы скачать чертеж, 3D модель или проект, Вы должны зарегистрироваться
и принять участие в жизни сайта. Посмотрите, как тут скачивать
файлы
Отзывов пока нет
Чтобы оставить отзыв, необходимо войти
Войти с помощью:
Используя функцию входа через сторонние сервисы, Вы соглашаетесь на обработку персональных данных в соответствии с Политикой конфиденциальности
Используя функцию входа через сторонние сервисы, Вы соглашаетесь на обработку персональных данных в соответствии с Политикой конфиденциальности