Перейти к содержимому
Войти

Реконструкция газорегулирующего оборудования ГРУ №1 и ГРУ №2 котельной

0
2
49
0
0
100

У робочому проекті реконструкції, внутрішнього газопостачання котельні, виконані такі обсяги робіт:
- Передбачена заміна газового обладнання ГРУ №1 та №2 на газове обладнання сучасного типу.
- Додатково встановити на вводах газопроводу у котельню запірних пристроїв для автоматичного вимкнення подачі газу.
- Підключення проектованих електромагнітних клапанів до діючої сигналізації загазованості котельні.
Реконструкція проводиться в межах внутрішнього газопостачання, всередині котельні, що діє.
Котельня, де проектом передбачається реконструкція двох ГРУ (а саме на 2-му рівні котельного залу), забезпечена вентиляцією з розрахунку триразового видалення повітря з приміщення на годину. Має достатній обсяг і площу скління відповідно до нормативних вимог.
Газорегуляторна установока ГРУ №1
Відповідно до технічного завдання діюче обладнання ГРУ №1 з регуляторами тиску РДУК-100 прийнято реконструювати із заміною регуляторів тиску на сучасний тип.
ГРУ № 1 призначена для забезпечення газом двох водогрійних котлів ПТВМ-30М, які обладнані газовими пальниками МДП-ГМ 500-4 / МДП-Г-500-4.
Тип і марка регуляторів прийнятих до встановлення даним проектом для ГРУ №1 підібрано з урахуванням , завдання на проектування, діючого газового обладнання котельні, а також даних заводу-виробника обладнання.
Проектом прийнято встановити у ГРУ №1 регулятори тиску газу NORVAL\G DN150 PN16 T.630 з проектним навантаженням на регулятор 7006м3\год.
ГРУ №1 проектується в дві лінії редукування (1-робоча лінія, 1-а резервна) а також на кожній лінії передбачен байпас.
Газові регулятори встановлюються на газопроводі високого тиску (Г3) (2 категорії) до 0.6мПа. Та підбирається з урахуванням 15% запасу. Пропускна здатність регулятора тиску – при вхідному тиску 1,8 бар. та вихідному тиску 0.3 бар. складає 14708м3\год.
Робоча схема ГРУ-1 залишається без змін
Газорегуляторна установока призначений для зниження тиску з високого (Г3) на середнє\робоче (Г2), автоматичної підтримки його на заданому рівні і автоматичного вимкнення в разі аварійного підвищення або зниження вихідного тиску понад допустимого заданого значення.
Застосовується для роботи в системах газопостачання промислових, сільськогосподарських і комунально-побутових об'єктів.
Газорегуляторна установка розташовується в металевій огорожі та знаходиться на 2-му рівні (поверху) котельної зали.
Основне обладнання ГРУ №1:
- фільтр газовий ФГ,
- регулятори тиску NORVAL/G DN150 PN16 T.630 із вбудованим запобіжно-запірним клапаном, (2-і лініі редукування)
- запобіжно-скидний клапан, контрольно-вимірювальні прилади,
- байпасни лініі,
- запірна арматура.

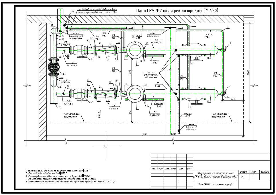
Газорегуляторна установока ГРУ №2
ГРУ №2 з регулятором тиску РДУК-200 прийнято реконструювати із зміною схеми на дві лінії редукування (1-робоча лінія, 1-а резервна) відповідно до завдання на проектування.
ГРУ № 2 призначена для забезпечення газом двох водогрійних котлів КВГМ-50, які обладнані газовими пальниками МДП-Г 2500-4.
Тип і марка регуляторів прийнятих до встановлення даним проектом для ГРУ №2 підібрано з урахуванням , завдання на проектування, діючого газового обладнання котельні, а також даних заводу-виробника обладнання.
Проектом прийнято встановити у ГРУ №2 регулятори тиску газу NORVAL\G DN150 PN16 T.630 з проектним навантаженням на регулятор 10431м3\год.
Газові регулятори встановлюються на газопроводі високого тиску (Г3) (2-ї категорії) до 0.6мПа. Та підбирається з урахуванням 15% запасу. Пропускна здатність регулятора тиску – при вхідному тиску 1,8 бар. та вихідному тиску 0.45 бар. складає 14199м3\год.
Газорегуляторна установока призначений для зниження тиску з високого (Г3) на середнє\робоче (Г2), автоматичної підтримки його на заданому рівні і автоматичного вимкнення в разі аварійного підвищення або зниження вихідного тиску понад допустимого заданого значення.
Застосовується для роботи в системах газопостачання промислових, сільськогосподарських і комунально-побутових об'єктів.
Газорегуляторна установка розташовується в металевій огорожі та знаходиться на 2-му рівні (поверху) котельної зали.
Основне обладнання ГРУ №2:
- фільтр газовий ФГ,
- регулятори тиску NORVAL/G DN150 PN16 T.630 із вбудованим запобіжно-запірним клапаном, (2-і лініі редукування)
- запобіжно-скидний клапан, контрольно-вимірювальні прилади,
- запірна арматура.


Сообщить о проблеме
Автор
user-avatar dew
Дата
22.12.2025
Язык
Украинский
Состав
чертежи, ПЗ
Софт
AutoCAD 2022 Как открыть?
Отзывов пока нет
Задать вопрос
Содержимое архива
  • icon-dwg ГРУ для загрузки (образец) 2025 год.dwg
  • icon-doc ПЗ ГСВ для загрузки ( образец) .docx
  • icon-png ситуация 1.png
Чтобы скачать чертеж, 3D модель или проект, Вы должны зарегистрироваться и принять участие в жизни сайта. Посмотрите, как тут скачивать файлы
Отзывов пока нет
Чтобы оставить отзыв, необходимо войти
Войти с помощью:

Используя функцию входа через сторонние сервисы, Вы соглашаетесь на обработку персональных данных в соответствии с Политикой конфиденциальности