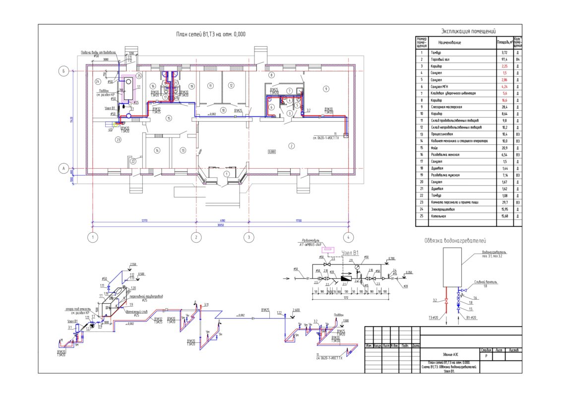
Проект системы водоснабжения АЗС. План сетей В1,Т3 на отметке 0,000. Схема сетей В1,Т3. Обвязка водонагревателя. Узел В1. План сетей(М 1:500). Монтажная схема. Разрез 1-1. Спецификация оборудования.
- Главная -
- Чертежи -
- Инженерные системы -
- Системы водоснабжения и канализации -
- Проект системы ВК, НВ АЗС
Проект системы ВК, НВ АЗС
0
0
71
0
0
100
Сообщить о проблеме
Автор
Дата
20.01.2026
Язык
Русский
Состав
План сетей В1,Т3 на отметке 0,000. Схема сетей В1,Т3. Обвязка водонагревателя. Узел В1. План сетей(М 1:500). Монтажная схема. Разрез 1-1. Спецификация оборудования.
Софт
AutoCAD 2013
Как открыть?
Отзывов пока нет
Содержимое архива
-
ИОС2.ВК(2022).dwg
-
ИОС2.НВ(2022).dwg
Чтобы скачать чертеж, 3D модель или проект, Вы должны зарегистрироваться
и принять участие в жизни сайта. Посмотрите, как тут скачивать
файлы
Отзывов пока нет
Чтобы оставить отзыв, необходимо войти
Войти с помощью:
Используя функцию входа через сторонние сервисы, Вы соглашаетесь на обработку персональных данных в соответствии с Политикой конфиденциальности
Используя функцию входа через сторонние сервисы, Вы соглашаетесь на обработку персональных данных в соответствии с Политикой конфиденциальности