Перейти к содержимому
Войти

Санитарно-техническое оборудование 8-этажного жилого дома

0
273
2194
2
0
30

Санкт-Петербургский государственный архитектурно-строительный университет, кафедра водоснабжение, инженерное оборудование здания, санитарно-техническое оборудование 8-этажного жилого дома, 2013 год

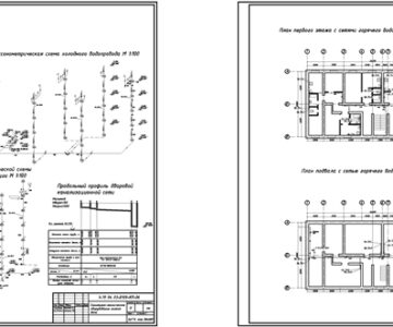
В курсовом проекте рассматривается 8-этажный жилой дом с тремя секторами: а, б, в. Коммуникации расположены в техническом подполье, на каждом этаже находится по 9 квартир. В данном проекте необходимо запроектировать системы холодного, центрального горячего водоснабжения, а также внутренней канализации. Курсовой проект содержит пояснительную записку из 8 листов, 3 расчётные таблицы в Excel, графическая часть чертёж формата А1


Сообщить о проблеме
Автор
user-avatar timtat61
Дата
07.10.2014
Язык
Русский
Состав
Генплан участка, план типового этажа, план подвала, аксонометрические схемы канализации и водопровода, профиль дворовой канализации, ПЗ
Софт
AutoCAD 2010 Как открыть?
Отзывов пока нет
Задать вопрос
Содержимое архива
    • icon-xls Вода.xls
    • icon-dwg Чертеж1.dwg
    • icon-doc курсач мой.doc
Чтобы скачать чертеж, 3D модель или проект, Вы должны зарегистрироваться и принять участие в жизни сайта. Посмотрите, как тут скачивать файлы
Отзывов пока нет
Чтобы оставить отзыв, необходимо войти
Войти с помощью:

Используя функцию входа через сторонние сервисы, Вы соглашаетесь на обработку персональных данных в соответствии с Политикой конфиденциальности