Перейти к содержимому
Войти

Уважаемые пользователи! В настоящий момент платежи через ЮKassa временно недоступны в связи с техническими неполадками на стороне сервиса. Функционирует резервный канал оплаты. Если у кого-то из вас не прошёл платёж за 27.04 напишите пожалуйста в контакты.

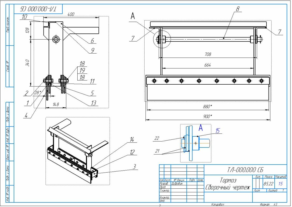
Тормоз ленточного транспортёра

0
0
53
0
0
100

Тормоз ленточного транспортёра, предотвращает откатывание нагруженной материалом ленты назад при расположении ленты под углом. Ширина ленты 900 мм, расстояния между рельсами 700 мм, высота от тормоза до оси вращения 340 мм.


Сообщить о проблеме
Автор
user-avatar user-8105647
Дата
19.12.2025
Язык
Русский
Состав
3D Сборка, Спецификация , чертежи (см. список файлов)
Софт
КОМПАС-3D v20 Как открыть?
Отзывов пока нет
Задать вопрос
Содержимое архива
      • icon-cdw Втулка _ ТЛ-000.015.cdw
      • icon-cdw Крепёжный лист _ ТЛ-000.006.cdw
      • icon-cdw Ось _ ТЛ-000.008.cdw
      • icon-cdw Пластина боковая _ ТЛ-000.001.cdw
      • icon-cdw Пластина прижимная _ ТЛ-000.002.cdw
      • icon-cdw Прижимная пластина 1 _ ТЛ-000.013.cdw
      • icon-cdw Прижимная пластина 2 _ ТЛ-000.014.cdw
      • icon-cdw Ребро жёсткости _ ТЛ-000.003.cdw
      • icon-cdw Резина 1 _ ТЛ-000.011.cdw
      • icon-cdw Резина 2 _ ТЛ-000.012.cdw
      • icon-cdw Резина длинная _ ТЛ-000.004.cdw
      • icon-cdw Резина короткая _ ТЛ-000.005.cdw
      • icon-cdw Тормоз _ ТЛ-000.000.cdw
      • icon-spw Тормоз _ ТЛ-000.000.spw
      • icon-cdw Уголок 40х40х5 ГОСТ 8509-93 _ ТЛ-000.010.cdw
      • icon-cdw Уголок 50х50х5 _ ТЛ-000.009.cdw
      • icon-cdw Уголок _ ТЛ-000.007.cdw
    • icon-m3d Втулка _ ТЛ-000.015.m3d
    • icon-m3d Крепёжный лист.m3d
    • icon-m3d Лист верхний.m3d
    • icon-m3d Ось _ ТЛ-000.08.m3d
    • icon-m3d Пласттина прижимная .m3d
    • icon-m3d Прижимная пластина 1.m3d
    • icon-m3d Прижимная пластина 2.m3d
    • icon-m3d Ребро жёсткости.m3d
    • icon-m3d Резина, h=120.m3d
    • icon-m3d Резина, h=170.m3d
    • icon-m3d Резина 1.m3d
    • icon-m3d Резина 2.m3d
    • icon-m3d ТЛ-000.001_Пластина боковая.m3d
    • icon-a3d Тормоз.a3d
    • icon-step Тормоз.stp
    • icon-m3d Уголок.m3d
    • icon-m3d Уголок 40х40х5.m3d
    • icon-m3d Уголок 50х50х5.m3d
    • icon-m3d Швеллер 10П.m3d
Чтобы скачать чертеж, 3D модель или проект, Вы должны зарегистрироваться и принять участие в жизни сайта. Посмотрите, как тут скачивать файлы
Отзывов пока нет
Чтобы оставить отзыв, необходимо войти
Войти с помощью:

Используя функцию входа через сторонние сервисы, Вы соглашаетесь на обработку персональных данных в соответствии с Политикой конфиденциальности