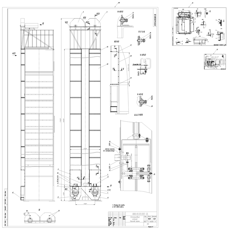
Мощность привода - 5,5 кВт, высота - 17,42 м, материал - зерно.
Установка норий
0
0
58
0
0
200
Сообщить о проблеме
Автор
Дата
07.10.2023
Язык
Русский
Состав
Сборочный чертеж, спецификация
Софт
AutoCAD 2018
Как открыть?
Отзывов пока нет
Содержимое архива
-
40СБ.dwg
-
40СП.dwg
Чтобы скачать чертеж, 3D модель или проект, Вы должны зарегистрироваться
и принять участие в жизни сайта. Посмотрите, как тут скачивать
файлы
Отзывов пока нет
Чтобы оставить отзыв, необходимо войти
Войти с помощью:
Используя функцию входа через сторонние сервисы, Вы соглашаетесь на обработку персональных данных в соответствии с Политикой конфиденциальности
Используя функцию входа через сторонние сервисы, Вы соглашаетесь на обработку персональных данных в соответствии с Политикой конфиденциальности