Перейти к содержимому
Войти

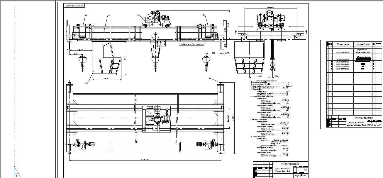
Кран мостовой 25т

0
7
556
9
0
20

Техническая характеристика

1. Грузоподъемность, т. . . . . . . . . . . . . . . . . . . . . .25
2. Высота подъема груза, м. . . . . . . . . . . . . . . . . .15
3. Режим работы. . . . . . . . . . . . . . . . . . . . . . . . Средний
4. Продолжительность включения. . . . . . . . . ПВ=40%
5. Скорость, м/с:
подъема груза. . . . . . . . . . . . . . . . . . . 0,125
передвижения тележки. . . . . . . . . . . . . .0,63
передвижения крана. . . . . . . . . . . . . . . .1,32
6. Электродвигатель механизма:
подъема груза:
тип. . . . . . . . . . . . . . . . . . . МТН 312-6
мощность, кВт. . . . . . . . . . . . . . . . .15
частота вращения, об/мин. . . . . . .950
передвижения тележки:
тип. . . . . . . . . . . . . . . . . . .4АС80А4У3
мощность, кВт. . . . . . . . . . . . . . . . .1,3
частота вращения, об/мин. . . . . . 1360
передвижения крана:
тип. . . . . . . . . . . . . . . . . . .4АС100L6У3
мощность, кВт. . . . . . . . . . . . . . . . .2,6
частота вращения, об/мин. . . . . . .920
7. Редуктор механизма:
подъема груза:
тип. . . . . . . . . . . . . . . . . Ц2-500-I-4М
передаточное число. . . . . . . . . . .50,94
передвижения тележки:
тип. . . . . . . . . . . . . . . . . . . .ВКУ-500М
передаточное число. . . . . . . . . . . . .28
передвижения крана:
тип. . . . . . . . . . . . . . . . . . . .ВКУ-610М
передаточное число. . . . . . . . . . . . .25
8. Тормоз механизма
подъема груза:
тип. . . . . . . . . . . дисково-колодочный
сдвоенный с диаметром
диска 400 мм
тормозной момент, Нм. . . . . .500-1300
передвижения тележки:
тип. . . . . . . . . . . . . . . . . . . . ТКГ-160
тормозной момент, Нм. . . . . . . . . . 98
передвижения крана:
тип. . . . . . . . . . . . . . . . . . . . ТКГ-160
тормозной момент, Нм. . . . . . . . . . 98


Сообщить о проблеме
Автор
user-avatar Sidewinder
Дата
06.12.2021
Язык
Русский
Состав
Чертеж общего вида
Софт
AutoCAD 2007 Как открыть?
Отзывов пока нет
Задать вопрос
Содержимое архива
  • icon-dwg
    Кран общий вид чертеж.dwg
Чтобы скачать чертеж, 3D модель или проект, Вы должны зарегистрироваться и принять участие в жизни сайта. Посмотрите, как тут скачивать файлы
Отзывов пока нет
Чтобы оставить отзыв, необходимо войти
Войти с помощью:

Используя функцию входа через сторонние сервисы, Вы соглашаетесь на обработку персональных данных в соответствии с Политикой конфиденциальности