Перейти к содержимому
Войти

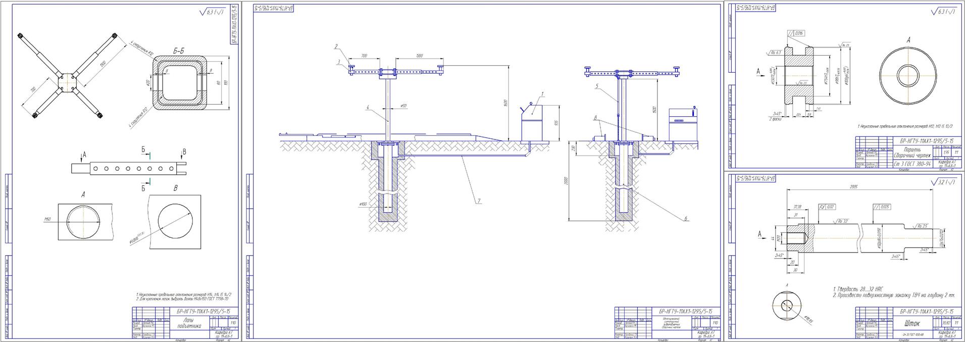
Одноплунжерный симметричный гидроподъемник

0
111
2001
56
1
50

Нижегородский государственный технический университет им. Р. Е, Алексеева
Кафедра АТ
Курсовой проект по дисциплине "Основы проектирования и эксплуатации технологического оборудования"
На тему: "Одноплунжерный симметричный гидроподъемник"
Нижний Новгород 2014

Разработать одноплунжерный симметричный гидроподъемник, предназначенный для выполнения работ по поднятию автомобиля, а также его отдельных агрегатов рассчитанных на грузоподъемность 3 т.
Содержание:
Введение
Техническое задание
1.Технические характеристики
2.Технические требования
3.Расчет центра тяжести автомобиля
4.Расчет устойчивости формы штока подъемника
5.Расчет гидропривода
6.Выбор электродвигателя
7. Проверка опасных сечений конструкции
8. Оценка безопасности конструкции при несимметричной установке автомобиля
9. Инструкция по применению

Графическая часть содержит:
Деталировочный чертеж Лап подъемника 1 лист А3
Деталировочный чертеж Поршня гидроцилиндра 1 лист А3
Деталировочный чертеж Штока гидроцилиндра 1 лист А3


Сообщить о проблеме
Автор
user-avatar LmaxS
Дата
21.11.2016
Язык
Русский
Состав
Одноплунженый симметричный гидроподъемник
Софт
КОМПАС-3D 15 Как открыть?
Отзывов пока нет
Задать вопрос
Содержимое архива
    • icon-doc kursovik.docx
    • icon-cdw Лапы.cdw
    • icon-cdw Одноплунжерный симметричный гидроподъемник _ НГТУ-ПТО-9.1 -0000СБ.cdw
    • icon-cdw Поршень.cdw
    • icon-spw Спецификация.spw
    • icon-doc содержание.doc
    • icon-doc титульник.doc
    • icon-cdw шток.cdw
Чтобы скачать чертеж, 3D модель или проект, Вы должны зарегистрироваться и принять участие в жизни сайта. Посмотрите, как тут скачивать файлы
Отзывов пока нет
Чтобы оставить отзыв, необходимо войти
Войти с помощью:

Используя функцию входа через сторонние сервисы, Вы соглашаетесь на обработку персональных данных в соответствии с Политикой конфиденциальности