Перейти к содержимому
Войти

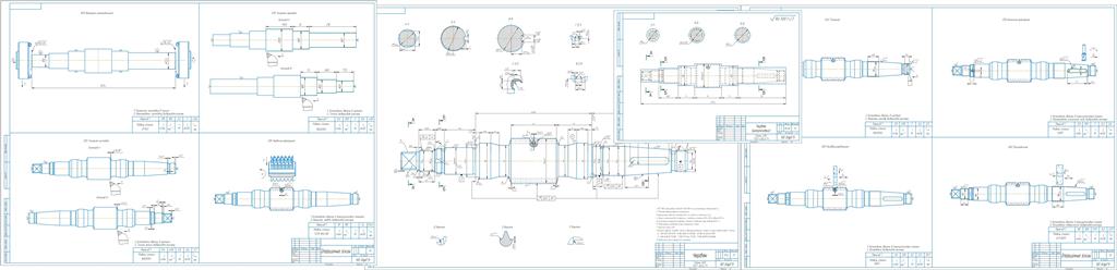
Разработать технологический процесс механической обработки детали "Червяк"

1
4
614
10
0
30

Барановичский Государственный университет
Кафедра технологии и оборудования машиностроения
Курсовой проект по дисциплине «Технология станкостроения»
На тему: «Разработать технологический процесс механической обработки детали червяк»
Барановичи 2020

Исходные данные: чертеж детали "Червяк"

В данном курсовом проекте определяется технологичность конструкции и тип производства; рассчитываются припуски на механическую обработку, режимы резания, границы регулирования и настроечный размер.

Содержание
1. Введение
2. Назначение и конструкция обрабатываемой детали
3. Определение технологичности конструкции детали
3.1. Качественный анализ
3.2. Количественный анализ
4. Определение типа производства и организационной формы производства
5. Выбор метода получения заготовки и технико-экономическое обоснование
6. Разработка маршрутной технологии
7. Разработка операционной технологии на 2-3 поверхности детали
8. Расчет припусков на механическую обработку
9. Выбор технологических баз при обработке 2-3 поверхностей
10. Расчет границ регулирования и настроечного размера для 2-3 операций
11. Расчет режимов резания
12. Выводы
13. Перечень используемых источников


Сообщить о проблеме
Дата
19.10.2020
Язык
Русский
Состав
Операционный эскиз 1, Операционный эскиз 2, Пояснительная записка, Чертеж детали, Чертеж заготовки детали
Софт
КОМПАС-3D V17 Как открыть?
Отзывов пока нет
Задать вопрос
Содержимое архива
    • icon-cdw Операционные эскизы 1.cdw
    • icon-cdw Операционные эскизы 2.cdw
    • icon-doc Пояснительная записка.docx
    • icon-cdw Чертеж детали.cdw
    • icon-cdw Чертеж заготовки детали.cdw
Чтобы скачать чертеж, 3D модель или проект, Вы должны зарегистрироваться и принять участие в жизни сайта. Посмотрите, как тут скачивать файлы
Отзывов пока нет
Чтобы оставить отзыв, необходимо войти
Войти с помощью:

Используя функцию входа через сторонние сервисы, Вы соглашаетесь на обработку персональных данных в соответствии с Политикой конфиденциальности