Перейти к содержимому
Войти

Разработка технологического процесса изготовления детали «Стакан»

0
0
76
3
0
30

Казанский Национальный Исследовательский Технический университет
им. А.Н. Туполева
Кафедра технологии машиностроительных производств
Курсовая работа на тему:
Разработка технологического процесса изготовления детали «Стакан»
2017

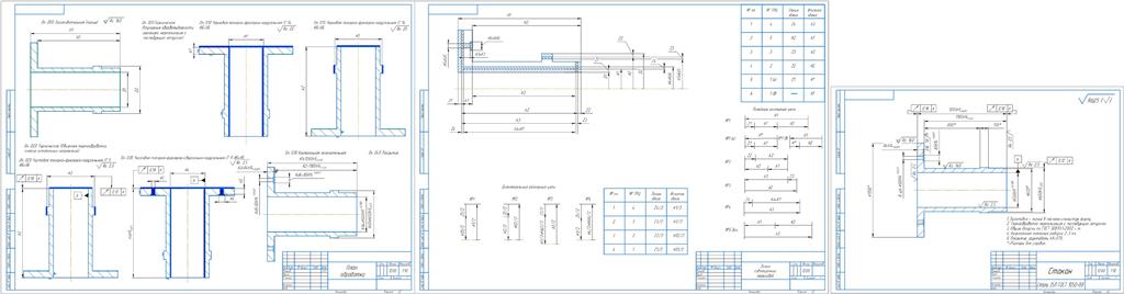
Деталь рассматриваемая в дипломном проекте «Стакан» по классификатору машиностроения относится к деталям типа «Втулка». Стакан Деталь "Стакан" используется в станкостроении, предназначена для точной установки валов, поэтому к ней предъявляются высокие требования по точности, по биению и шероховатости. В работе рассматривается деталь "Стакан" размером 1350х1285 мм, изготовленной из стали 35Л. Деталь предназначена для точной установки валов. Исходными данными проектирования является чертеж детали "Стакан", тип производства - среднесерийный. Графические файлы включают чертеж детали, план обработки и эскиз совмещенных переходов в формате .cdw, а также пояснительную записку в формате Word.
Содержание:
Введение 3
1 Анализ рабочего чертежа 4-5
2 Обоснование вида, способа получения и формы заготовки 6-8
3 Определение планов (ступеней) обработки основных поверхностей 8-9
4 Анализ схемы простановки размеров и установление последовательности обработки поверхностей 10
5 Формирование укрупненной маршрутной технологии и определение мест операций термической обработки и операций контроля 10
6 Обоснование выбора оборудования и формирования плана технологического процесса (маршрутной технологии) 11
7 Обоснование выбора мест операций контроля 11-12
8 Обоснование выбора исходных, установочных и измерительных баз 11-14
9 Описание методики составления эскиза совмещенных переходов, выявления и построения технологических размерных це-пей 14-15
10 Обоснование выбора метода и способа решения основных раз-мерных цепей 16-17
11 Решение основных размерных цепей 17-24
12 Проверка и корректировка операционных припусков, операционных допусков и операционных размеров 25
13 Обоснование преимуществ разработанного технологического процесса по сравнению с прототипом 25-26
14 Список использованной литературы 26


Сообщить о проблеме
Автор
user-avatar mihail_p24
Дата
06.11.2025
Язык
Русский
Состав
рабочий чертеж детали, план обработки, эскиз совмещенных переходов, расчет размерных цепей, пояснительная записка
Софт
КОМПАС-3D 19 Как открыть?
Отзывов пока нет
Задать вопрос
Содержимое архива
    • icon-cdw ПЛАНОБРАБОТКИ15.cdw
    • icon-doc Пояснительная записка.docx
    • icon-cdw ЭСП.cdw
    • icon-cdw чертеж детали15.cdw
Чтобы скачать чертеж, 3D модель или проект, Вы должны зарегистрироваться и принять участие в жизни сайта. Посмотрите, как тут скачивать файлы
Отзывов пока нет
Чтобы оставить отзыв, необходимо войти
Войти с помощью:

Используя функцию входа через сторонние сервисы, Вы соглашаетесь на обработку персональных данных в соответствии с Политикой конфиденциальности