Перейти к содержимому
Войти

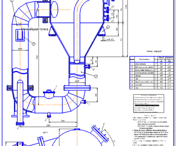
Аммонизатор-гранулятор

0
3
257
1
0
150

ИГХТУ Кафедра МАХП
Дипломная работа на тему: производство гранулированных двух- и трехкомпонентных минеральных удобрений
Иваново 2013

Целью данного дипломного проекта является модернизация одного из производств ОАО ”Аммофос”, в частности речь идет о сушильном отделении производства минеральных удобрений, пущеном в эксплуатацию в 1979 году.
Процесс сушки заключается в удалении влаги из материалов с целью улучшения качества выпускаемого продукта, предохранения его от слеживания, снижения массы, придания ему транспортабельности и т.д.
Внешнеэкономическая деятельность предприятия включает в себя продажу минеральных удобрений , закупку технологического оборудования и создание совместных предприятий.

Техническая характеристика.
1.Размеры корпуса аммонизатора - гранулятора
диаметр наружнии, мм - 4000
длина мм - 8000
угол наклона 1 10'
2.Скорость вращения барабана, об/мин - 9.3
3.Среда в аппарате - коррозионная, токсичная, взрывоопасная.
4.Температура в аппарате, С 60
5.Расчетная производительность по продукту, т/час - 400
6.Электродвигатель АКЗ-12-39-6, И = 6000 В,
N= 320 кВт, n= 980 об/мин, комплектно со станцией управление
ПНВ-6701-53А2, сопротивлением КФ- 22М (ящике №7 и №20).
7.Редуктор ЦДН - 710-16-12.
8.Ход обдирочного ножа, мм - 160.
9.Климатическое исполнение и категория размещения УЧ ГОСТ 15150-69.
10.Габариты, мм длина 14000
ширина 7000
высота 6600.
Содержание.
Введение.
1.1.Обоснование выбора темы.
1.2.Общая характеристика производства.
1.3.Описание технологической схемы.
1.4.Устройство и принцип работы аппарата БГС.
1.5.Патентное исследование.
2.1.Технологические расчеты.
2.2.1.Прочностные расчеты БГС.
2.2.1.1.Расчет аппарата БГС на прочность
2.2.1.2.Расчет барабана на жесткость.
2.2.1.3.Определение геометрических размеров бандажа, свободно надетого на корпус сушилки.
2.2.1.4.Прочностной расчет шнека.
2.2.1.5.Расход мощности на вращение барабана.
2.2.2.Расчет цилиндрической зубчатой передачи.
2.2.3.Расчет вала подвенцовой шестерни.
2.2.4.Расчет оси опорного ролика.
2.2.5.Расчет посадки с натягом опорного ролика на ось.
2.2.6.Расчет посадки с натягом подвенцовой шестерни на вал.
3.1.Компоновка оборудования.
3.2.Монтаж оборудования.
3.3.Эксплуатация и ремонт оборудования сушильного отделения.
3.4.Испытания аппарата БГС.
4.Безопасность жизнедеятельности модернизируемого сушильного отделения.
4.1.Общая характеристика безопасности сушильного отделния.
4.2. Анализ опасных производственных факторов.
4.3.Анализ вредных производственных факторов.
4.4.Очистка отходящих газов сушильного отделения.
4.5.Пожарная профилактика.
4.6.Электробезопасность.
4.7. Оценка возможных чрезвычайных (аварийных) ситуаций.
4.8.Защита окружающей среды.
5.Расчет экономической целесообразности модернизации сушильного отделения.
5.1.Расчет капитальных вложений при модернизации сушильного отделения.
5.2.Режим работы оборудования.
5.3.Расчет годовой производительности.
5.4.Расчет эксплуатационных затрат.
5.5.Расчет потребности в сырье, топливе и энергии.
5.6.Составление калькуляции себестоимости.
5.7.Расчет эффективности проведенных мероприятий.
5.8.Расчет годового экономического эффекта от модернизации оборудования.
6.Заключение.
7.Литература.


Сообщить о проблеме
Автор
user-avatar Anton3223
Дата
29.03.2023
Язык
Русский
Состав
Аммонизатор-гранулятор, Корпус, ПЗ
Софт
КОМПАС-3D 16 Как открыть?
Отзывов пока нет
Задать вопрос
Содержимое архива
      • icon-cdw Гранулятор.cdw
      • icon-spw Гранулятор.spw
      • icon-cdw Гранулятор 1.cdw
      • icon-cdw Гранулятор2.cdw
      • icon-cdw Гранулятор 3.cdw
      • icon-cdw Корпус.cdw
      • icon-doc -1.doc
      • icon-doc -2.doc
      • icon-doc -4.doc
      • icon-doc -5.doc
      • icon-doc -6.doc
    • icon-cdw Гранулятор.cdw
    • icon-spw Гранулятор.spw
    • icon-cdw Гранулятор 1.cdw
    • icon-cdw Гранулятор2.cdw
    • icon-cdw Гранулятор 3.cdw
    • icon-cdw Корпус.cdw
Чтобы скачать чертеж, 3D модель или проект, Вы должны зарегистрироваться и принять участие в жизни сайта. Посмотрите, как тут скачивать файлы
Отзывов пока нет
Чтобы оставить отзыв, необходимо войти
Войти с помощью:

Используя функцию входа через сторонние сервисы, Вы соглашаетесь на обработку персональных данных в соответствии с Политикой конфиденциальности