Перейти к содержимому
Войти

Моделирование процесса грануляции плава в грануляторе и гранбашне при производстве нитроаммофоски.

0
162
1911
4
0
300

Ивановский государственный химико-технологический университет
Кафедра МАХП (Машин и аппаратов химических производств)
Квалификационная работа бакалавра
На тему:Моделирование процесса грануляции плава в грануляторе и гранбашне при производстве нитроаммофоски.
Иваново 2015

Объектом изучения и разработки в настоящей квалификационной работе является математическое моделирование процесса грануляции нитроаммофоски с разработкой центробежного гранулятора.
Дипломный проект содержит пояснительную записку и графическую
часть.
В пояснительной записке приведен обзор литературы по гранулированию расплавов минеральных удобрений, описание технологического процесса гранулирования нитроаммофоски, режимов работы с указанием технологических параметров.
Расчетная часть пояснительной записки в разделе «технологическая часть» содержит материальный и тепловой балансы отделения гранулирования.
В разделе «проектно-конструкторская часть» приведены расчеты основных элементов и деталей действующего оборудования на прочность, жесткость и пр.
В разделе «моделирование процесса гранулирования нитроаммофоски в центробежном грануляторе» составлен алгоритм расчета, матмодель процесса грануляции, программа на языке MathCad и приведен расчет гранулометрического состава. По расчетным данным выполнен анализ влияния технологических параметров на размер готового продута.
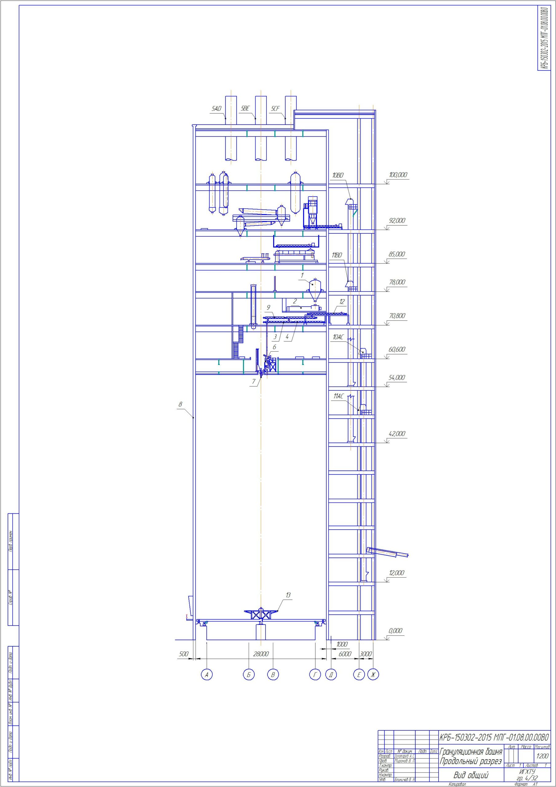
Графическая часть проекта включает в себя: технологическую схему, сборочный чертеж центробежного гранулятора, строительно-монтажный чертеж гранбашни, алгоритм расчета, графики зависимостей основных параметров.
Содержание
Аннотация

1. Литературный обзор
2. Технологическая часть
2.1 Характеристика сырья и получаемой продукции
2.2 Краткое описание технологической схемы производства
2.3 Материальный баланс отделения гранулирования
2.4 Тепловой баланс отделения гранулирования
3. Литературный обзор по методике расчета гидродинамических характеристик процесса грануляции
4. Моделирование процесса грануляции
4.1 Алгоритм расчета
4.2 Программа расчета на ЭВМ (Математическая модель расчета гранулометрического состава)
4.3 Анализ полученных результатов
5. Проектно-конструкторская часть
5.1. Определение выполнения виброустойчивости гранулятора
5.2. Расчет корзины на прочность
5.3. Прочностной расчет грануляционной башни на осевую сжимающую силу и изгибающий момент от ветровой нагрузки
6. Список использованной литературы
7. Приложения


Сообщить о проблеме
Автор
user-avatar Алексей
Дата
29.05.2016
Язык
Русский
Состав
Гранулятор(ВО),Спецификация,Диспергатор(ВО),Спецификация,Гранбашня(ВО),Спецификация,Технологическая схема производства гранул нитроаммофоски(ТС)ПЗ
Софт
КОМПАС-3D 15 SP1 Как открыть?
Отзывов пока нет
Задать вопрос
Содержимое архива
    • icon-cdw 1 СП (техн. схема).cdw
    • icon-cdw 1 Технологическая схема.cdw
    • icon-cdw 2 Гранбашня.cdw
    • icon-cdw 2 СП(гранбашня).cdw
    • icon-cdw 3 Гранулятор.cdw
    • icon-cdw 3 СП (гранулятор).cdw
    • icon-cdw 4 Диспергатор.cdw
    • icon-cdw 4 СП(диспергатор).cdw
    • icon-cdw 5 траектория падения гранул.cdw
    • icon-frw 6 алгоритм.frw
    • icon-doc Бакалаврский диплом.docx
    • icon-cdw График.cdw
    • icon-cdw График 2.cdw
    • icon-txt Маткад.rtf
Чтобы скачать чертеж, 3D модель или проект, Вы должны зарегистрироваться и принять участие в жизни сайта. Посмотрите, как тут скачивать файлы
Отзывов пока нет
Чтобы оставить отзыв, необходимо войти
Войти с помощью:

Используя функцию входа через сторонние сервисы, Вы соглашаетесь на обработку персональных данных в соответствии с Политикой конфиденциальности