Перейти к содержимому
Войти

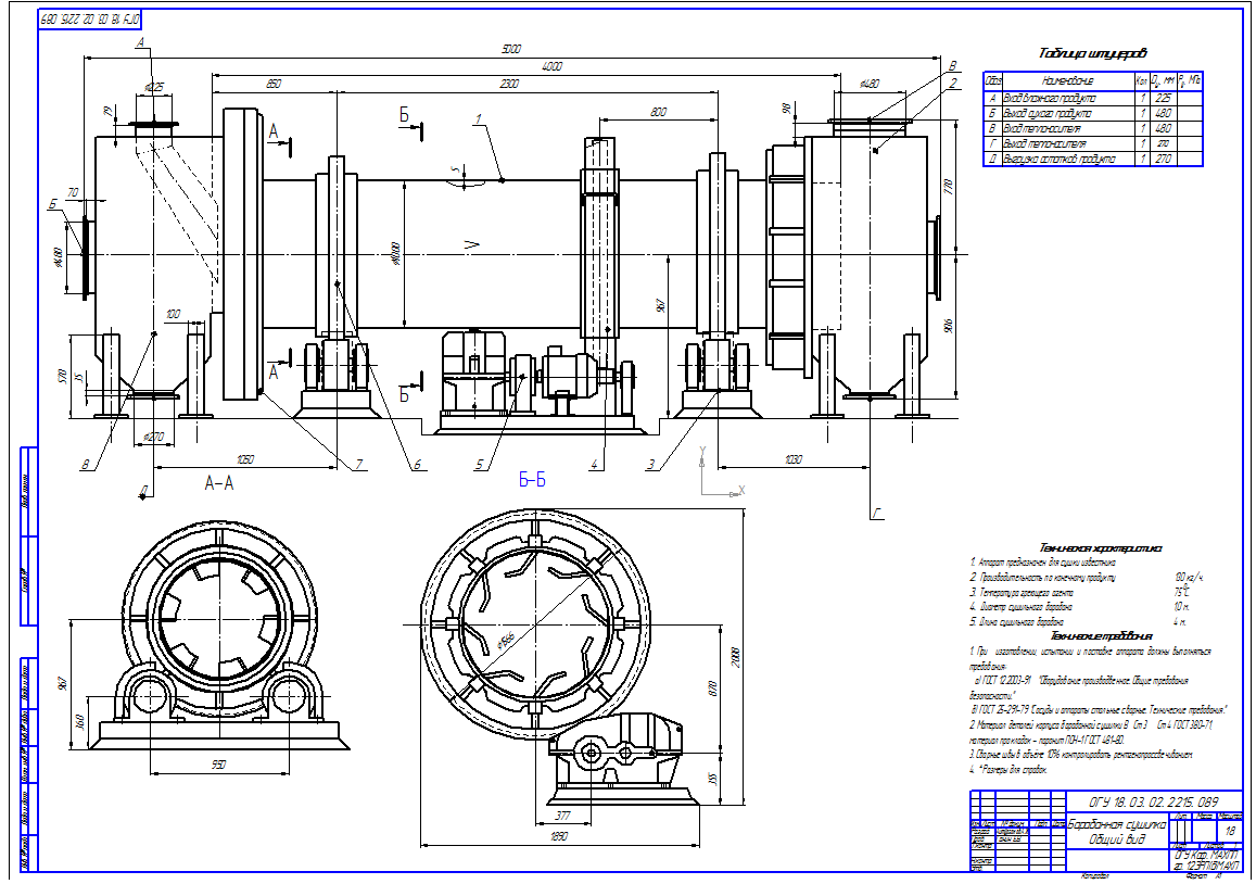
Барабанная сушилка для осушки известняка.

0
232
14932
15
0
100

ОГУ, кафедра МАХПП, процессы и аппараты химических технологий, "Барабанная сушилка", 2015 год.

Расчетно-пояснительная записка содержит 20 страниц, в том числе рисунки, таблицы. Графическая часть выполнена на листах формата А1. В данном проекте описана конструкция и изложен процесс расчета барабанной сушилки. Проведены расчеты, выбраны параметры сушильного агента, построен процесс сушки, рассчитано время сушки, подобранны вспомогательные устройства.

В разработку входит:

• Расчетно-пояснительная записка
• Барабанная сушилка. Общий вид (А1)
• Корпус барабанной сушилки (А1)
Исходные данные:
Рассчитать барабанную сушилку для сушки материала нагретым в калорифере воздухом при следующих условиях:
- высушиваемый материал – известняк;
- производительность по готовому продукту , кг/c = 0,48;
- начальная влажность , % = 11; конечная влажность , % = 2;
- начальная температура материала = 20;
- температура газов: на входе =950 и на выходе из барабана =75;
- вид насадки – подъёмно-лопастная;
- топливо – топочный уголь.
Техническая характеристика.
1.Аппарат предназначен для сушки известника
2.Производительность по конечному продукту 130 кг/ч.
3.Температура греющего агента 75 С.
4.Диаметр сушильного барабана 1,0 м.
5.Длина сушильного барабана 4 м.


Сообщить о проблеме
Автор
user-avatar Aydos26
Дата
15.10.2015
Язык
Русский
Состав
Барабан(ОВ), Корпус барабана, ПЗ
Софт
КОМПАС-3D 14 Как открыть?
Отзывов пока нет
Задать вопрос
Содержимое архива
  • icon-doc КР ПАХТ Барабанная сушилка.doc
  • icon-cdw Чертеж.cdw
  • icon-cdw Чертеж2.cdw
Чтобы скачать чертеж, 3D модель или проект, Вы должны зарегистрироваться и принять участие в жизни сайта. Посмотрите, как тут скачивать файлы
Отзывов пока нет
Чтобы оставить отзыв, необходимо войти
Войти с помощью:

Используя функцию входа через сторонние сервисы, Вы соглашаетесь на обработку персональных данных в соответствии с Политикой конфиденциальности