Перейти к содержимому
Войти

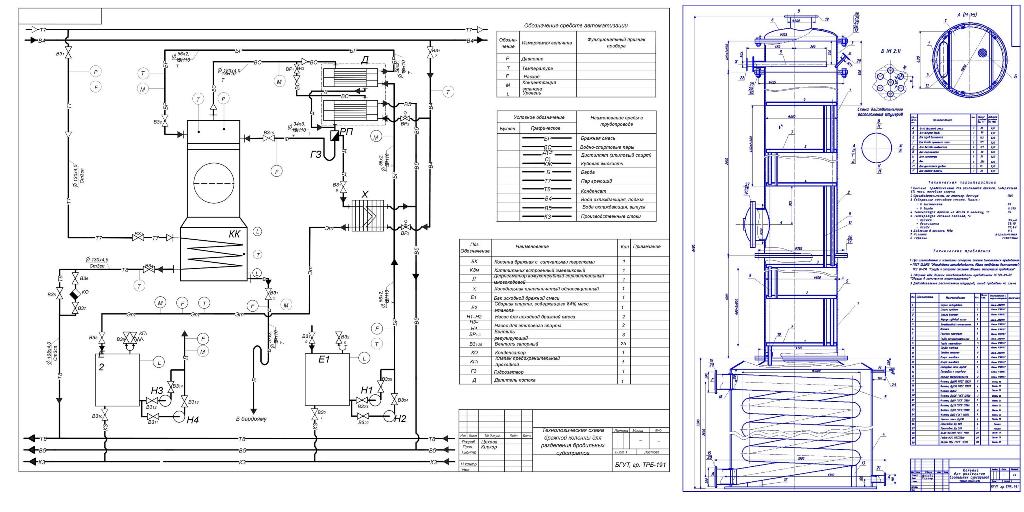
Колонна для разделения бродильных субстратов

0
1
152
2
1
100

Могилевский государственный университет продовольствия
Кафедра тепло и массообменных аппаратов
Курсовая работа на тему "Колонна бражная для разделения субстратов"
Могилев 2021

В графическую часть работы входят:
Технологическая схема установки (бражной колонны)
Чертеж вида общего установки (бражной колонны)
В пояснительную записку входит:
Содержание:
1 Состояние вопроса......................................................................................... 5
1.1 Общие сведения о процессе разделения бродильных субстратов.......... 5
1.2 Брагоперегонная колонна, устройство, принцип работы. Схемы
обогрева бражных колонн. Типы тарелок........................................................ 7
2 Технические описания и расчеты................................................................. 13
2.1 Описание принципа работы технологической схемы............................. 13
2.2 Описание принципа работы проектируемого аппарата.......................... 15
2.3 Материальный расчет установки....................................……………...... 17
2.4 Тепловой расчет аппарата.......................................................................... 20
2.5 Конструктивный расчет проектируемого аппарата................................ 31
2.6 Тепловые расчеты комплектующего оборудования и его подбор........ 34
2.7 Гидравлический расчет продуктовой линии и подбор
нагнетательного оборудования…………………...................................... 55
Требования техники безопасности и ПС............…………………............... 59
Заключение....................................................................................................... 61
Список использованных источников............................................................. 62
Данные для выполнения работы:
Дано:
Производительность колонны по этанолу 1200 дал/сут; тип тарелки-ситчатая; содержание спирта в питании 6% масс.; в барде 0,015 % масс.
Начальная температура бражки 16 градусов
Тип встроенного кипятильника - змеевик
Тип кожухотрубного дефлегматора - горизонтальный многоходовой
Холодильник- пластинчатый односекционный
Давление греющего пара 0,3 МПа

Содержание
Введение 3
1 Состояние вопроса 5
1.1 Общие сведения о процессе разделения бродильных субстратов. 5
1.2 Брагоперегонная колонна, устройство, принцип работы. Схемы
обогрева бражных колонн. Типы тарелок 7
2 Технические описания и расчеты 13
2.1 Описание принципа работы технологической схемы 13
2.2 Описание принципа работы проектируемого аппарата 15
2.3 Материальный расчет установки 17
2.4 Тепловой расчет аппарата 20
2.5 Конструктивный расчет проектируемого аппарата 31
2.6 Тепловые расчеты комплектующего оборудования и его подбор 34
2.7 Гидравлический расчет продуктовой линии и подбор
нагнетательного оборудования 55
Требования техники безопасности и ПС 59
Заключение 61
Список использованных источников. 62


Сообщить о проблеме
Автор
user-avatar Natasha
Дата
23.04.2022
Язык
Русский
Состав
Пояснительная записка (ПЗ) (docx файл); колонна бражная (ВО) (dwg файл),технологическая схема установки (бражной колонны) (vsd файл)
Софт
AutoCAD 2019 Как открыть?
Отзывов пока нет
Задать вопрос
Содержимое архива
  • icon-doc РПЗ колонны.docx
  • icon-visio Технологическая схема колонны.vsd
  • icon-dwg чертеж,общий вид колонны.dwg
Чтобы скачать чертеж, 3D модель или проект, Вы должны зарегистрироваться и принять участие в жизни сайта. Посмотрите, как тут скачивать файлы
Отзывов пока нет
Чтобы оставить отзыв, необходимо войти
Войти с помощью:

Используя функцию входа через сторонние сервисы, Вы соглашаетесь на обработку персональных данных в соответствии с Политикой конфиденциальности