Перейти к содержимому
Войти

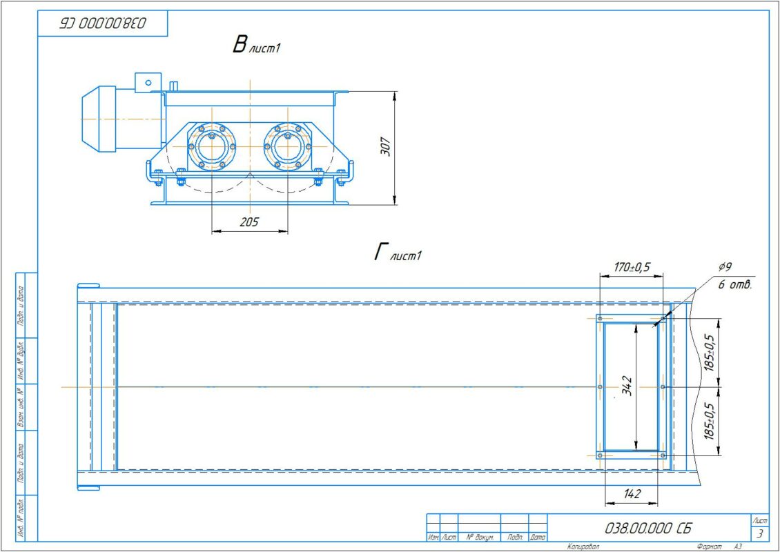
Смеситель двухвальный лопастной

0
0
30
0
0
150

Смеситель оснащен двумя валами с поворотными лопатками.

Технические характеристики:
1.Мощность, кВт не более.........................................................1,1
2.Скорость вращения валов, об/мин.....................................35
3.Угол установки лопастей к оси
валов,.............................................................................................30
4.Габаритные размеры, мм не более:
длина......................................................................................... 2010
ширина..................................................................................... 735
высота.................................................................................... 357
.


Сообщить о проблеме
Автор
user-avatar u8656
Дата
10.04.2026
Язык
Русский
Состав
Сборочные чертежи, спецификации, чертежи деталей
Софт
КОМПАС-3D 23 Как открыть?
Отзывов пока нет
Задать вопрос
Содержимое архива
    • icon-cdw 038.00.000.cdw
    • icon-spw 038.00.000.spw
    • icon-cdw 038.00.000Лист2.cdw
    • icon-cdw 038.00.000Лист3.cdw
    • icon-cdw 038.00.001.cdw
    • icon-cdw 038.00.002.cdw
    • icon-cdw 038.00.003.cdw
    • icon-cdw 038.00.004.cdw
    • icon-cdw 038.00.005.cdw
    • icon-cdw 038.00.006.cdw
    • icon-cdw 038.00.007.cdw
    • icon-cdw 038.00.008.cdw
    • icon-cdw 038.00.009.cdw
    • icon-cdw 038.00.010.cdw
    • icon-cdw 038.00.011.cdw
    • icon-cdw 038.00.012.cdw
    • icon-cdw 038.00.013.cdw
    • icon-cdw 038.00.014.cdw
    • icon-cdw 038.01.000.cdw
    • icon-spw 038.01.000.spw
    • icon-cdw 038.01.001.cdw
    • icon-cdw 038.01.002.cdw
    • icon-cdw 038.02.000.cdw
    • icon-spw 038.02.000.spw
    • icon-cdw 038.02.001.cdw
    • icon-cdw 038.02.002.cdw
    • icon-cdw 038.02.003.cdw
    • icon-cdw 038.03.000.cdw
    • icon-spw 038.03.000.spw
    • icon-cdw 038.03.001.cdw
    • icon-cdw 038.04.000.cdw
    • icon-spw 038.04.000.spw
    • icon-cdw 038.04.001.cdw
    • icon-cdw 038.04.100.cdw
    • icon-spw 038.04.100.spw
    • icon-cdw 038.04.101.cdw
    • icon-cdw 038.04.102.cdw
    • icon-cdw 038.05.000 лист2.cdw
    • icon-cdw 038.05.000.cdw
    • icon-spw 038.05.000.spw
    • icon-cdw 038.05.001.cdw
    • icon-cdw 038.05.002.cdw
    • icon-cdw 038.05.003.cdw
    • icon-cdw 038.06.000.cdw
    • icon-spw 038.06.000.spw
    • icon-cdw 038.06.001.cdw
Чтобы скачать чертеж, 3D модель или проект, Вы должны зарегистрироваться и принять участие в жизни сайта. Посмотрите, как тут скачивать файлы
Отзывов пока нет
Чтобы оставить отзыв, необходимо войти
Войти с помощью:

Используя функцию входа через сторонние сервисы, Вы соглашаетесь на обработку персональных данных в соответствии с Политикой конфиденциальности