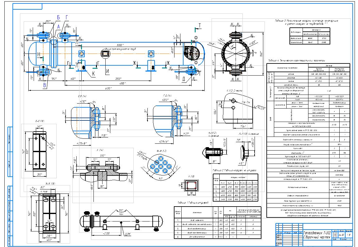
Теплообменник Т-302, Рабочее давление 2,85 МПа, Ми н. допустимая температура стенки сосуда -60 С, Класс опасности ГОСТ 12.1.007-76, Среда - конденсат газа, Вместимость 0,75м3,
Материальное исполнение сталь 09Г2С. Расчетный срок службы - 30лет.
- Главная -
- Чертежи -
- Промышленность -
- Добывающая, горная промышленность -
- Нефть и Газ -
- Теплообменник Т-302
Теплообменник Т-302
      
      0
    
  
      
      0
    
  
    
    22
  
  
    
    0
  
  
    
    0
  
                50
              
                                   
           
               
              
    Сообщить о проблеме
    
              
              
          
  
        Автор
      
      
                  
      Дата
    
    26.10.2025
  
      Язык
    
    
              Русский
          
  
      Состав
    
    
      Габаритная 3D сборка, , Вид общий (ВО)
    
  
      Софт
    
    
      КОМПАС-3D V21
              Как открыть?
          
  
              Отзывов пока нет
          
  
    Содержимое архива
  
      - 
    Сборка теплообменник.stp
- 
    Теплообменник Т-302 Сборочный чертеж.cdw
- 
    Емкость.m3d
- 
    Сборка теплообменник.a3d
  Чтобы скачать чертеж, 3D модель или проект, Вы должны зарегистрироваться
  и принять участие в жизни сайта. Посмотрите, как тут скачивать
  файлы
      
      
      
    
            Отзывов пока нет
          
                
  Чтобы задать вопрос, необходимо войти
  
    
  
      Войти с помощью:
    
    
                      
                    Ссылка на логин через google
        
                      
                    Ссылка на логин через vk
        
                      
                    Ссылка на логин через yandex
        
          
   
                 
                 
                 
                 
                 
                 Нурхаёт Эшонкулов
    Нурхаёт Эшонкулов
   Денис Смирнов
    Денис Смирнов