Перейти к содержимому
Войти

Бетоносмеситель двухвальный СБ-75А

0
0
40
0
0
50

Министерство науки и высшего образования РФ
Казанский государственный архитектурно-строительный университет
Кафедра технологии
строительных материалов,
изделий и конструкций
КУРСОВАЯ РАБОТА
По дисциплине: «Механическое оборудование предприятий строительной индустрии»
На тему: «Бетоносмеситель двухвальный СБ-75А»
2024

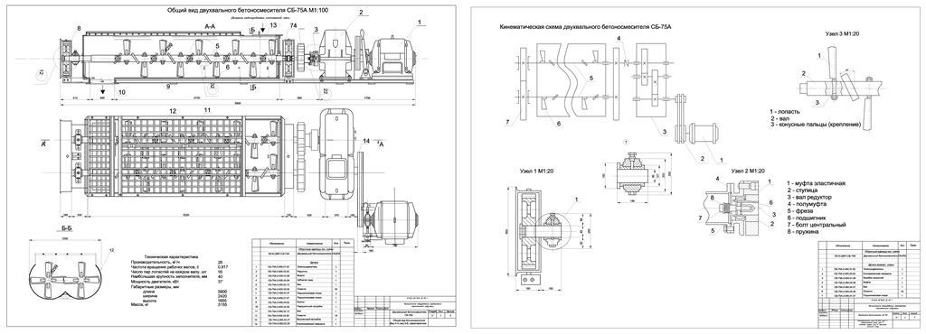
Технические характеристики бетоносмесителя СБ-75А
Производительность, м3/ч 30
Частота вращения вала, с-1 0,917
Число пар лопастей на каждом валу, шт. 16
Наибольшая крупность заполнителя, мм 40
Мощность двигателя, кВт 37
Габаритные размеры, мм:
Длина 5900
Ширина 2420
Высота 1655
Масса, кг 3115
Исходные данные для расчета:
l=3м, Rн=299 мм, Rв=204 мм, b=50 мм, б=3, р=2400 кг/м3, w=4, η=0,85
Введение 4
1. Анализ конструкции и выбор схемы оборудования 6
1.1. Классификация бетоносмесителей 8
2. Описание конструкции и работы 10
3. Расчетная часть 12
3.1 Технические характеристики бетоносмесителя СБ-75А 12
3.2 Расчет производительности смесителя 12
3.3 Расчет мощности смесителя 13
4. Требования по эксплуатации установки 16
5. Охрана труда и техника безопасности 18
6. Заключение 20
Список использованной литературы 21
Графическая часть:
Лист 1 – Общий вид бетоносмесителя СБ-75А, спецификация, технические характеристики
Лист 2 – Кинематическая схема, 3 узла


Сообщить о проблеме
Автор
user-avatar user-8458585
Дата
01.03.2026
Язык
Русский
Состав
чертежи, ПЗ
Софт
AutoCAD 2023 Как открыть?
Отзывов пока нет
Задать вопрос
Содержимое архива
  • icon-doc Введение и дальше (14).docx
  • icon-dwg сб75а.dwg
  • icon-doc тит+сод.docx
Чтобы скачать чертеж, 3D модель или проект, Вы должны зарегистрироваться и принять участие в жизни сайта. Посмотрите, как тут скачивать файлы
Отзывов пока нет
Чтобы оставить отзыв, необходимо войти
Войти с помощью:

Используя функцию входа через сторонние сервисы, Вы соглашаетесь на обработку персональных данных в соответствии с Политикой конфиденциальности