Перейти к содержимому
Войти

Расчет, конструирование и составление теплового баланса установок для тепловой обработки строительных материалов и изделий

0
0
12
0
0
100

Белорусский национальный технический университет
Строительный факультет
Кафедра «Строительные материалы и технология строительства»
по дисциплине: «Теплотехника и теплотехническое оборудование»,
Минск, 2021

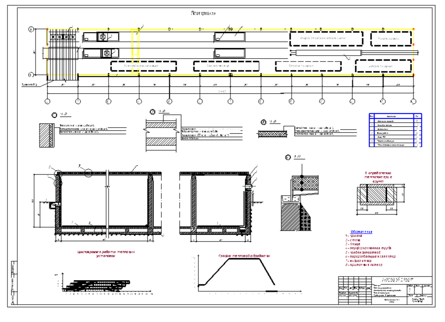
Заданием курсового проекта предусмотрен выпуск железобетонных многопустотных плит.
• Длина L=6000 мм;
• Ширина B=1000 мм;
• Высота H= 220 мм.
Время занятости ямной установки τцикла – составляет:
τцикла= 2+3+5+2,5+2=14,5 часов.

Содержание

Введение 2
1. Краткое описание технологического процесса изготовления изделий 4
2. Характеристика материалов и габаритные размеры изделий, форм. 7
3. Состав бетонной смеси 8
4. Выбор и обоснование режима тепловой обработки, расчет прогрева изделий. 9
5. Конструктивный расчет установки и определение требуемого количества тепловых агрегатов. 15
6. Теплотехнический расчет установки. 17
7. Определение часовых расходов теплоты и теплоносителя по периодам (зонам) тепловой обработки 32
8. Составление схемы подачи теплоносителя, построение циклограммы работы тепловых установок, расчёт тепловых нагрузок и параметров сети 33
9. Пути снижение энергозатрат при тепловой обработке 34
10. Список использованной литературы 37


Сообщить о проблеме
Дата
08.04.2026
Язык
Русский
Состав
чертеж, ПЗ
Софт
AutoCAD 2019 Как открыть?
Отзывов пока нет
Задать вопрос
Содержимое архива
  • icon-doc теплотехника_Коротченя.docx
  • icon-dwg теплотехника_Коротченя.dwg
Чтобы скачать чертеж, 3D модель или проект, Вы должны зарегистрироваться и принять участие в жизни сайта. Посмотрите, как тут скачивать файлы
Отзывов пока нет
Чтобы оставить отзыв, необходимо войти
Войти с помощью:

Используя функцию входа через сторонние сервисы, Вы соглашаетесь на обработку персональных данных в соответствии с Политикой конфиденциальности