Перейти к содержимому
Войти

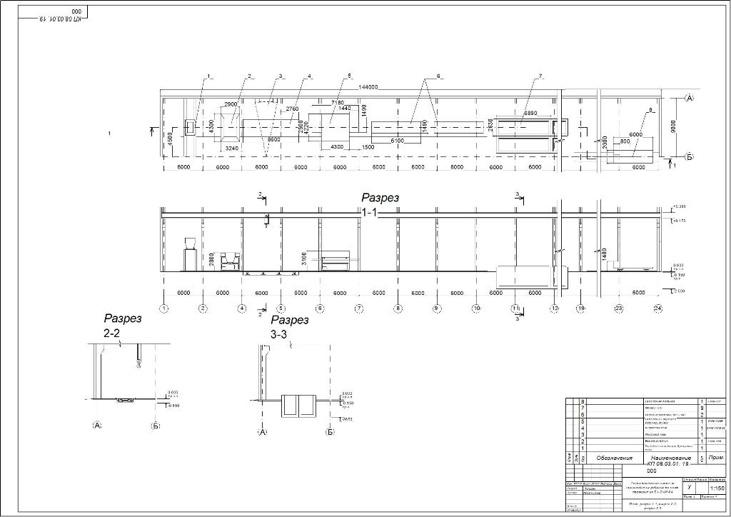
Технологическая линия по производству плит перекрытий П1-2 серии ИИ-64

0
0
271
1
0
50

ФГБОУ ВПО «Алтайский государственный технический университет им. И. И. Ползунова»
Кафедра «Строительные материалы»
Курсовая расчетно-графическая работа по дисциплине «Технология железобетонных изделий»
На тему:«Технологическая линия по производству плит перекрытий П1-2 серии ИИ-64»

К разработке принята плита перекрытия П1-2 серии ИИ-64 для многоэтажных жилых зданий
Изделие с размерами h=350±5 мм, b=1190±5 мм; l=5660±5 мм.
Показатели расхода бетона и стали на П1-2:
- вес 1,69 т;
- марка бетона М200;
- расход материалов:
-бетон 0,678 м3;
- арматурная холоднотянутая проволока ст.3 – 14,6 кг;
- горячекатаная арматурная сталь периодического профиля ст.25Г2С - 25,5 кг;
- круглая ст3 – 2,6 кг
Содержание стали в 1м3 бетона 63 кг.
Расчётная равномерно-распределенная нагрузка :
-на полку – 1040 кг/м3
-на ребра – 1180 кг/м3

Рарзаботана линия по производству плит.


Сообщить о проблеме
Дата
07.06.2019
Язык
Русский
Состав
План, разрез 1-1, разрез 2-2, разрез 3-3 , пояснительная записка
Софт
AutoCAD 2017 Как открыть?
Отзывов пока нет
Задать вопрос
Содержимое архива
  • icon-dwg liniya.dwg
  • icon-doc pl.doc
Чтобы скачать чертеж, 3D модель или проект, Вы должны зарегистрироваться и принять участие в жизни сайта. Посмотрите, как тут скачивать файлы
Отзывов пока нет
Чтобы оставить отзыв, необходимо войти
Войти с помощью:

Используя функцию входа через сторонние сервисы, Вы соглашаетесь на обработку персональных данных в соответствии с Политикой конфиденциальности