Перейти к содержимому
Войти

Проектирование контактной машины точечной сварки

0
146
2266
9
0
160

Национальный технический университет Украины "Киевский политехнический институт"
Кафедра сварочного производства и оборудования
Курсовой проект по дисциплине "Технологии и оборудование сварки давлением"
На тему: "Проектирование контактной машины точечной сварки"
Киев 2015

В данной работе проектирование контактной машины точечной сварки для сварки двух деталей толщиной 0,5 мм из низкоуглеродистой стали. Произведен технологический расчет режимов работы машины и произведен выбор оборудования.
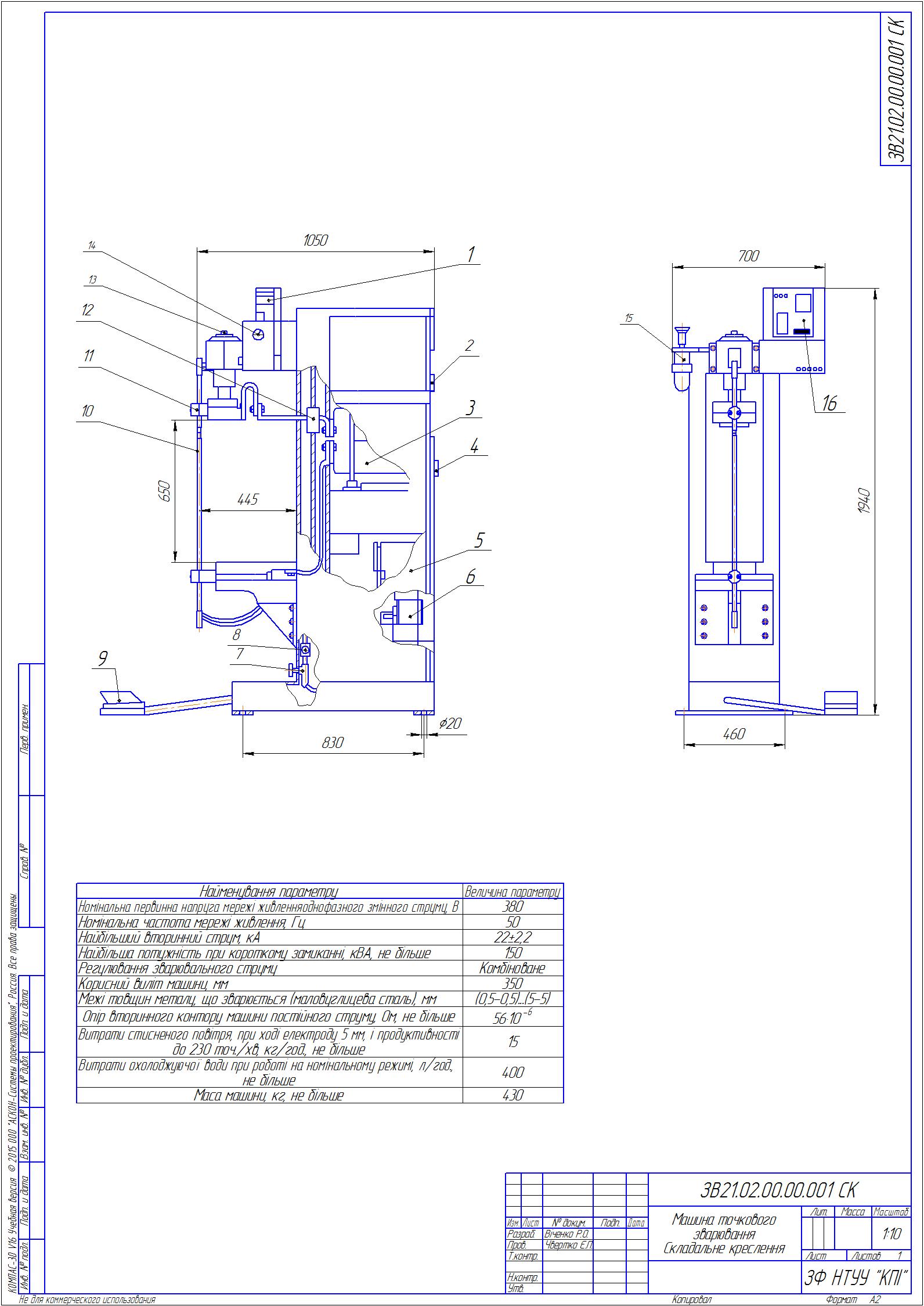
Графическая часть содержит чертеж машины точечной сварки, электродного узла, электрода, электрододержателя, привода сжатия, спецификации к машине, электродному узлу и приводу, схему электрическую структурную, схему пневматическую принципиальную, чертеж конструктивных элементов сварного соединения, циклограмму режимов сварки, диаграмму баланса энергии, параметры режимов сварки.
Курсовой проект содержит 1 лист формата А2, 8 листов формата А3 и 5 листов А4 графической части, 27 страниц пояснительной записки, содержащей 10 рисунков, 8 таблиц и 8 источников.

Ст3 - низкоуглеродистая сталь относится к материалам группы 1. Для этой группы характерно:
Среднее значение предельного электросопротевления, малый показатель сопротивления деформации, низкая чувствительность к термическому циклу и вибризгиваний позволяет сваривать эти стали как на жестких так и мягких режимах при небольшом сварочном токе и малом сварочном усилии электродов с плоской рабочей поверхностью, электропроводностью не менее 80% электропроводности меди и твердостью НВ 120-140. (выдержки из курсовой работы из раздела "Анализ материала, который свариваеться")

В конструкторской части была разработана контактная машина точечной сварки на основе МТ-2202.

Технические характеристики:
Номинальное первичное напряжение питающей сети однофазного переменного тока, В: 380
Номинальная частота питающей сети, Гц: 50
Наибольший вторичный ток, кА: 22±2,2
Регулирование сварочного тока: комбинированое
Масса машины, кг, не более: 430


Сообщить о проблеме
Автор
user-avatar James Ace
Дата
06.04.2016
Язык
Украинский
Состав
Машина точечной сварки (СЧ), электродный узел (СЧ), электрод, электрододержатель, привод сжатия (СК), 3 спецификации, схема электрическая структурная, схема пневматическая принципиальная, конструктивные элементы сварного соединения, циклограмма режимов сварки, диаграмма баланса энергии, параметры режимов сварки, ПЗ.
Софт
КОМПАС-3D 16 Как открыть?
Отзывов пока нет
Задать вопрос
Содержимое архива
  • icon-cdw 01 - Машина точкового зварювання Складальне креслення _ ЗВ21.02.00.00.001 СК.cdw
  • icon-cdw 02 - Вузол електродний.cdw
  • icon-cdw 03 - Електрод.cdw
  • icon-cdw 04 - Електродотримач.cdw
  • icon-cdw 05 - Привід стискання.cdw
  • icon-spw 06 - Привід стискання.spw
  • icon-spw 07 - Вузол електродний.spw
  • icon-spw 08 - Машина точкового зварювання.spw
  • icon-cdw 09 - Схема електрична структурна.cdw
  • icon-cdw 10 - Схема пневматична принципова.cdw
  • icon-cdw 11 - Конструктивні елементи зварного з’єднання.cdw
  • icon-cdw 12 - Циклограма визначених параметрів режиму зварювання.cdw
  • icon-cdw 13 - Діаграма балансу енергії, що витрачається на зварювання.cdw
  • icon-cdw 14 - Параметри режимів зварювання.cdw
  • icon-doc Vedomost.docx
  • icon-doc Задание.docx
  • icon-doc Записка.docx
Чтобы скачать чертеж, 3D модель или проект, Вы должны зарегистрироваться и принять участие в жизни сайта. Посмотрите, как тут скачивать файлы
Отзывов пока нет
Чтобы оставить отзыв, необходимо войти
Войти с помощью:

Используя функцию входа через сторонние сервисы, Вы соглашаетесь на обработку персональных данных в соответствии с Политикой конфиденциальности