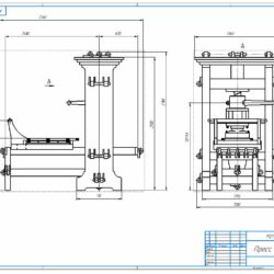
Пресс Гутенберга (печатный станок) служит для перенесения текста (изображения) с матрицы на бумагу.
Пресс Гутенберга
0
1
968
0
0
600

Сообщить о проблеме
Автор

Дата
14.10.2019
Язык
Русский
Состав
Сборки, спецификации.
Софт
КОМПАС-3D 16.1
Как открыть?
Отзывов пока нет
Содержимое архива
Чтобы скачать чертеж, 3D модель или проект, Вы должны зарегистрироваться
и принять участие в жизни сайта. Посмотрите, как тут скачивать
файлы
Отзывов пока нет
Чтобы задать вопрос, необходимо войти
Войти с помощью:
Ссылка на логин через google
Ссылка на логин через vk
Ссылка на логин через yandex