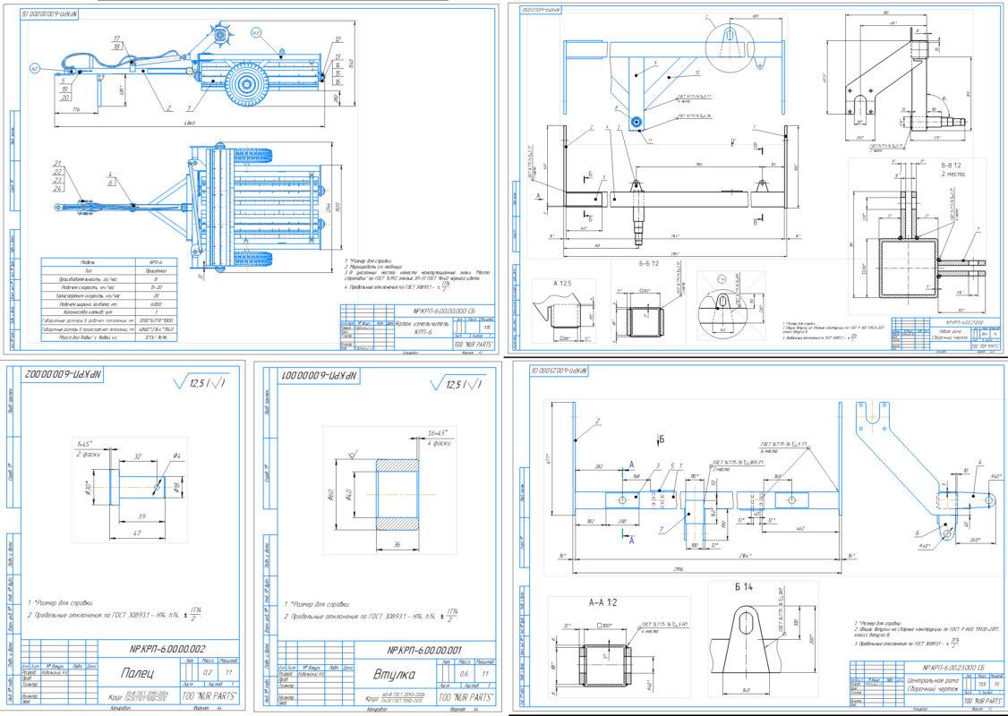
Каток рубящий водоналивной КРП-6, предназначен для измельчения растительных остатков после уборки зерновых культур. Данный вид техники превращает остаток жатвы в однородную массу(длиной не более 190 мм) и равномерно распределяет ее по полю.
- Главная -
- Чертежи -
- Сельское хозяйство -
- Каток измельчитель КРП-6
Каток измельчитель КРП-6
0
18
634
7
0
900

Сообщить о проблеме
Автор
Дата
08.12.2020
Язык
Русский
Состав
Сборочный чертеж, Спецификация, Деталировка
Софт
КОМПАС-3D 18,1
Как открыть?
Отзывов пока нет
Содержимое архива
Чтобы скачать чертеж, 3D модель или проект, Вы должны зарегистрироваться
и принять участие в жизни сайта. Посмотрите, как тут скачивать
файлы
Отзывов пока нет
Чтобы задать вопрос, необходимо войти
Войти с помощью:
Ссылка на логин через google
Ссылка на логин через vk
Ссылка на логин через yandex