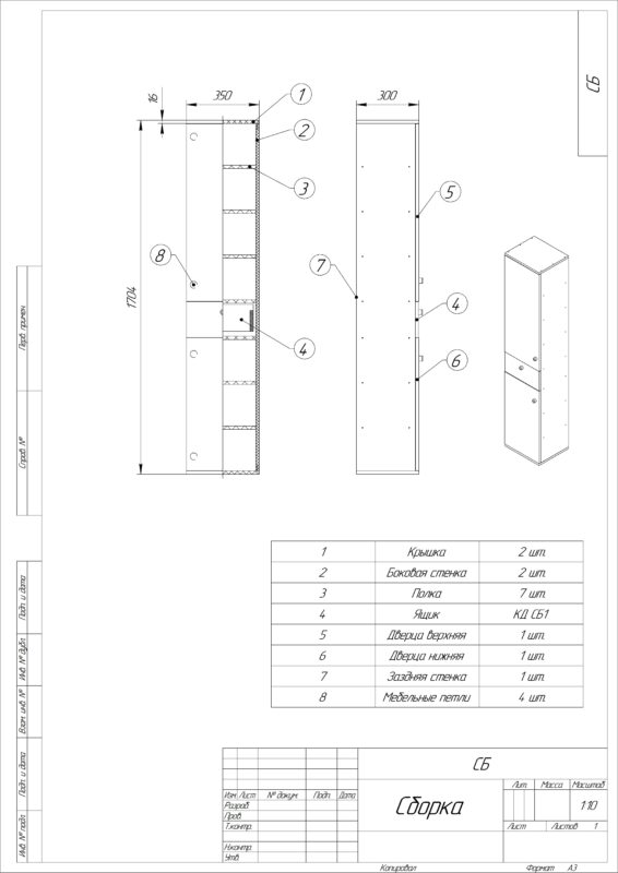
3д Модели подетально и сборка изделия + сборка ящика, чертежи для изготовления шкафа для обуви в маленькую прихожую. Размеры 1704х350х300.
- Главная -
- Чертежи -
- Строительство -
- Интерьер и мебель -
- Шкаф для обуви 1704х350х300.
Шкаф для обуви 1704х350х300.
0
0
47
0
0
20




Сообщить о проблеме
Автор

Дата
30.01.2025
Язык
Русский
Состав
3D Сборка и чертежи
Софт
SolidWorks 2020 и Компас 21
Как открыть?
Отзывов пока нет
Содержимое архива
Чтобы скачать чертеж, 3D модель или проект, Вы должны зарегистрироваться
и принять участие в жизни сайта. Посмотрите, как тут скачивать
файлы
Отзывов пока нет
Чтобы задать вопрос, необходимо войти
Войти с помощью:
Ссылка на логин через google
Ссылка на логин через vk
Ссылка на логин через yandex