Перейти к содержимому
Войти

Модель каркаса крыши навеса

0
0
142
0
0
40

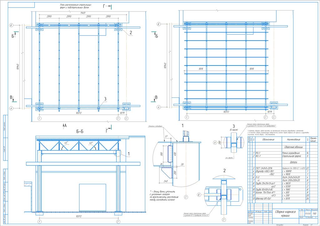
Трехмерная твердотельная сборка крыши навеса, выполненная в среде компас-3D V16. Размеры см. картинку 2 и 3


Сообщить о проблеме
Автор
user-avatar Amikron_9100
Дата
30.01.2025
Язык
Русский
Состав
3D Сборка
Софт
КОМПАС-3D 16 Как открыть?
Отзывов пока нет
Задать вопрос
Содержимое архива
    • icon-m3d Асфальт.m3d
    • icon-m3d Двутавр 45Б2.m3d
    • icon-m3d Двутавр 50Б1.m3d
    • icon-m3d Заглушка ЗГ-1.m3d
    • icon-m3d Здание.m3d
    • icon-a3d Колонна _ К-1.a3d
    • icon-m3d Листы.m3d
    • icon-a3d Модель каркаса крыши.a3d
    • icon-cdw Модель каркаса крыши.cdw
    • icon-spw Модель каркаса крыши.spw
    • icon-cdw Модель конструкции.cdw
    • icon-m3d Подкос _ ПС1.m3d
    • icon-m3d Подкрановая балка.m3d
    • icon-m3d Прогоны.m3d
    • icon-cdw Прорисовки.cdw
    • icon-m3d Профлист НС44-1000-0,7.m3d
    • icon-a3d Рамка ограждения _ РО-1.a3d
    • icon-cdw Рамка ограждения _ РО-1.cdw
    • icon-spw Рамка ограждения _ РО-1.spw
    • icon-m3d Связь по фермам _ ВС1.m3d
    • icon-m3d Соседний гараж и забор.m3d
    • icon-a3d Стропильная ферма _ ФС-1.a3d
    • icon-cdw Стропильная ферма _ ФС-1.cdw
    • icon-spw Стропильная ферма _ ФС-1.spw
    • icon-m3d Труба 25х25х1,5.m3d
    • icon-m3d Труба 50х50х3.m3d
    • icon-m3d Труба 100х100х3.m3d
    • icon-m3d Уголок 40х40х4.m3d
    • icon-m3d Уголок 75х75х6.m3d
    • icon-m3d Ферма.m3d
    • icon-m3d Фундамент _ Ф-1.m3d
Чтобы скачать чертеж, 3D модель или проект, Вы должны зарегистрироваться и принять участие в жизни сайта. Посмотрите, как тут скачивать файлы
Отзывов пока нет
Чтобы оставить отзыв, необходимо войти
Войти с помощью:

Используя функцию входа через сторонние сервисы, Вы соглашаетесь на обработку персональных данных в соответствии с Политикой конфиденциальности