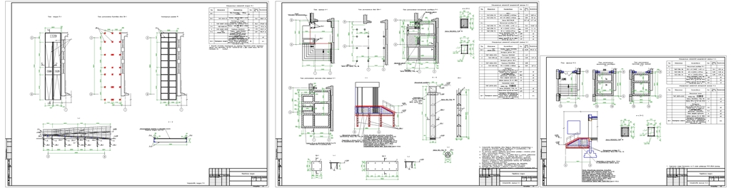
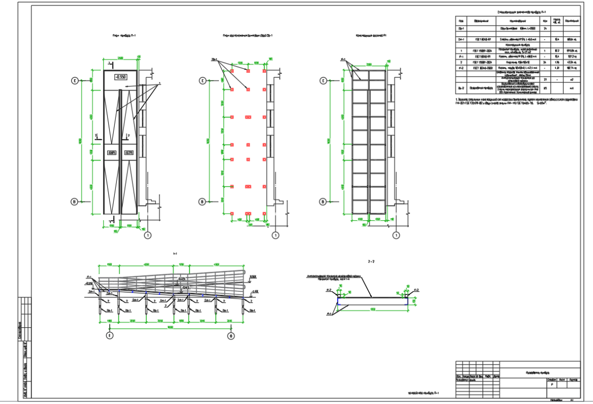
Пандус на мет. каркасе с опиранием на винтовых сваях. Также представлен фрагмент возводимой входной группы с основанием из ЖБ каркаса опиранием на песчаную подушку.
Размеры пандуса 9 м на 2,4 м.Так же есть еще вариант входной группы
- Главная -
- Чертежи -
- Строительство -
- Металлоконструкции -
- Пандус для нежилого здания и входная группа
Пандус для нежилого здания и входная группа
0
0
45
1
0
40
Сообщить о проблеме
Автор
Дата
14.01.2026
Язык
Русский
Состав
Устройство пандуса П-1, Устройство крыльца К-1
Софт
AutoCAD 1
Как открыть?
Отзывов пока нет
Содержимое архива
-
Пандус для нежилого здания.dwg
Чтобы скачать чертеж, 3D модель или проект, Вы должны зарегистрироваться
и принять участие в жизни сайта. Посмотрите, как тут скачивать
файлы
Задания с фриланса
3д и кд на мини погрузчик типа Taian DY620, DY840, Multione 5 series, Multione 7 series, Avant
договорная
3 недели назад
Отзывов пока нет
Чтобы оставить отзыв, необходимо войти
Войти с помощью:
Используя функцию входа через сторонние сервисы, Вы соглашаетесь на обработку персональных данных в соответствии с Политикой конфиденциальности
Используя функцию входа через сторонние сервисы, Вы соглашаетесь на обработку персональных данных в соответствии с Политикой конфиденциальности