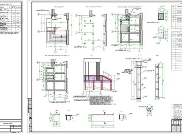
1. Пандус выполнить шириной в чистоте не менее 900-1000 мм.
2.Уклон пандуса должен быть не более 1:12, а при подъёме на высоту до 20 см не более 1:10.
3.По боковым краям пандуса и горизонтальных площадок выполнить бортики высотой 75мм из уголка 75x6. для предотвращения соскальзывания коляски. 4.Высота подъёма каждого марша пандуса не должна превышать 0,8м.
5.Глубина площадки должна составить не менее 1500мм.
6. Стенки пандуса выполнить из керамического кирпича толщиной 250мм.Кладку выполнить с армированием кладочной сеткой. Под основание стенок выполнить бетонный фундамент сечением 300x500/
7. Косоуры пандуса заложить в кирпичную стену.
8. Между косоурами уложить профнастил НС35, выполнить армирование сеткой, и забетонировать на высоту швеллера.
9. Сварку выполнять по ГОСТ 5264-80*, электродами "Э-42"
10. Высота шва равна наименьшей толщине свариваемых элементов.
11. Сварка условно не показана
12. Все металические конструкции необходимо прогрунтовать грунтовкой ГФ-017 ОСТ 6-10-1428-79 в 2 слоя и окрасить эмалью ПФ-115 ГОСТ 6465-91 за 2 раза.
13. Покрытие пандуса выполнить из асфальта или нескользящей тротуарной плитки.
14. Кирпичные стены отштукатурить декоротивной штукатуркой "Кнаф Диамант" и окрасить фасадной краской. Цвет и фактуру согласовать с заказчиком.
- Главная -
- Чертежи -
- Строительство -
- Металлоконструкции -
- Ремонт входной группы (пандус)
Ремонт входной группы (пандус)
0
0
436
0
0
20

Сообщить о проблеме
Автор
Дата
17.12.2021
Язык
Русский
Состав
конструкция пандуса и ограждение
Софт
AutoCAD 2010
Как открыть?
Отзывов пока нет
Содержимое архива
Чтобы скачать чертеж, 3D модель или проект, Вы должны зарегистрироваться
и принять участие в жизни сайта. Посмотрите, как тут скачивать
файлы
Отзывов пока нет
Чтобы задать вопрос, необходимо войти
Войти с помощью:
Ссылка на логин через google
Ссылка на логин через vk
Ссылка на логин через yandex