Перейти к содержимому
Войти

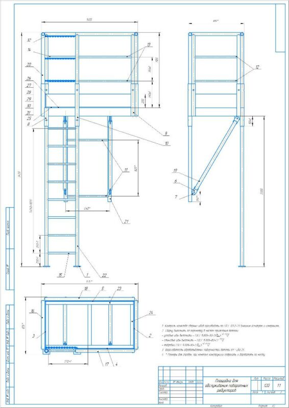
Площадка 1280х680х3420 мм.

0
1
41
0
0
100

Конструкция съёмной площадки с вертикальным трапом для обслуживания поворотных редукторов грузоподъемных устройств, грузоподъемность конструкции 0,6 тонн. Конструкция крепится на приварных обухах. КОнструкция разработана по Техническому заданию экипажа судна.
Трехмерная модель выполнена в масштабе 1:1 и содержит деталировку и спецификацию. Выполнена в твердотельном моделировании.
Габаритные размеры площадки 1280х680х3420мм.


Сообщить о проблеме
Дата
27.01.2026
Язык
Русский
Состав
3D модель площадки, сборочный чертеж , Спецификация
Софт
КОМПАС-3D 18 Как открыть?
Отзывов пока нет
Задать вопрос
Содержимое архива
    • icon-m3d 25х3 - 406.m3d
    • icon-m3d 25х3 - 598.m3d
    • icon-m3d 25х3 - 618.m3d
    • icon-m3d 25х3 - 770.m3d
    • icon-m3d 25х3 - 1218.m3d
    • icon-m3d 48х4 - 708.m3d
    • icon-m3d 48х4 - 860.m3d
    • icon-m3d 48х4 - 1126.m3d
    • icon-m3d 48х4 - 1156.m3d
    • icon-m3d 48х4 - 1308.m3d
    • icon-m3d 48х4 - 1310.m3d
    • icon-m3d 48х4 - 2250.m3d
    • icon-m3d 57х4 - 270.m3d
    • icon-m3d 57х4 - 470.m3d
    • icon-m3d 57х4 - 620.m3d
    • icon-m3d Бурт 680.m3d
    • icon-m3d Бурт 690.m3d
    • icon-m3d Бурт 850.m3d
    • icon-m3d Бурт 1280.m3d
    • icon-m3d ЗВЕНО цепи 6х19.m3d
    • icon-m3d Звено цепи 6х9.m3d
    • icon-a3d Лестница.a3d
    • icon-m3d Настил.m3d
    • icon-m3d Обух.m3d
    • icon-a3d Ограждение 708.a3d
    • icon-a3d Ограждение 860.a3d
    • icon-a3d Ограждение 1260.a3d
    • icon-a3d Площадка.a3d
    • icon-m3d Площадка 100х100.m3d
    • icon-a3d Площадка для обслуживания поворотных редукторов.a3d
    • icon-cdw Площадка для обслуживания поворотных редукторов.cdw
    • icon-spw Площадка для обслуживания поворотных редукторов.spw
    • icon-step Площадка для обслуживания поворотных редукторов.stp
    • icon-cdw Площадка для обслуживания поворотных редукторов с допразмерами.cdw
    • icon-cdw Площадка для обслуживания поворотных редукторов с обухами.cdw
    • icon-m3d Ребро 60.m3d
    • icon-m3d Ребро 80.m3d
    • icon-m3d Ребро 1300.m3d
    • icon-a3d Связь.a3d
    • icon-m3d Связь 700 усеченный.m3d
    • icon-a3d Стойка.a3d
    • icon-a3d Цепь 6х19 прямая (длина).a3d
Чтобы скачать чертеж, 3D модель или проект, Вы должны зарегистрироваться и принять участие в жизни сайта. Посмотрите, как тут скачивать файлы
Отзывов пока нет
Чтобы оставить отзыв, необходимо войти
Войти с помощью:

Используя функцию входа через сторонние сервисы, Вы соглашаетесь на обработку персональных данных в соответствии с Политикой конфиденциальности