забайкальский государственный университет
кафедра строительства
факультет строительства и экологии
Курсовой проект Расчет и проектирование конструкций балочной клетки и колонн каркаса рабочей площадки 2025г
1. Здание одноэтажное, производственное.
2. Размер площадки в плане: 3L х3B.
3. Опирание колонн на фундамент – шарнирное.
4. Шаг колонн в продольном направлении L 16,0 =м.
5. Шаг колонн в поперечном направлении B 6,5= м.
6. Строительная высота hстр, = 1,85 м.
7. Отметка чистого пола – 0,000 м.
8. Отметка верха настила H =5,1 м.
9. Временная равномерно распределенная нагрузка на балку рn = 17 кН/м2.
10. Применяемые материалы:
Балки настила- С245; главные балки- С285; колонны С-275; бетон фундамента-В15.
Графическая часть проекта выполняется на одном листе формата А-1 размером 594х841 мм
СОДЕРЖАНИЕ
ВВЕДЕНИЕ 5
1 Расчет балок балочной клетки нормального типа 7
1.1 Расчет балок настила для балочной клетки нормального типа по первому варианту 7
1.2 Расчет балки настила прокатного профиля по второму варианту 11
1.3 Расчет балочной клетки усложненного типа 11
1.3.1 Расчет балок настила 16
1.3.2 Расчет второстепенных балок 17
1.4 Выбор оптимального типа балочной клетки 19
2 Расчет сварной главной балки балочной клетки 20
2.1 Определение нагрузок, действующих на главную балку 20
2.2 Определение расчетных усилий в главной балке 20
2.3 Подбор размеров поперечного сечения главной балки 20
2.4 Проверка размеров поперечного сечения главной балки 20
2.5 Проверка прочности подобранного сечения 30
2.6 Проверка жетскости подобранного сечения 32
2.7 Изменение сечения главной балки по длине 32
2.8 Проверка общей устойчивости главной балки 37
2.9 Проверка и обеспечение местной устойчивости элементов балки 38
2.10 Расчет соединения пояяов со стенкой балки 41
2.11 Расчет опорной части балки 42
3 Расчет центрально-сжатой колонны 46
3.1 Выбор расчетной схемы колонны 46
3.2 Подбор сечения и конструктивное оформление стержня колонны 47
3.2.1 Подбор сечения сплошной колонны 47
3.4 Расчет базы колонны 52
3.5 Расчет оголовка колонны 20
ЗАКЛЮЧЕНИЕ 59
СПИСОК ИСПОЛЬЗУЕМЫХ ИСТОЧНИКОВ 60
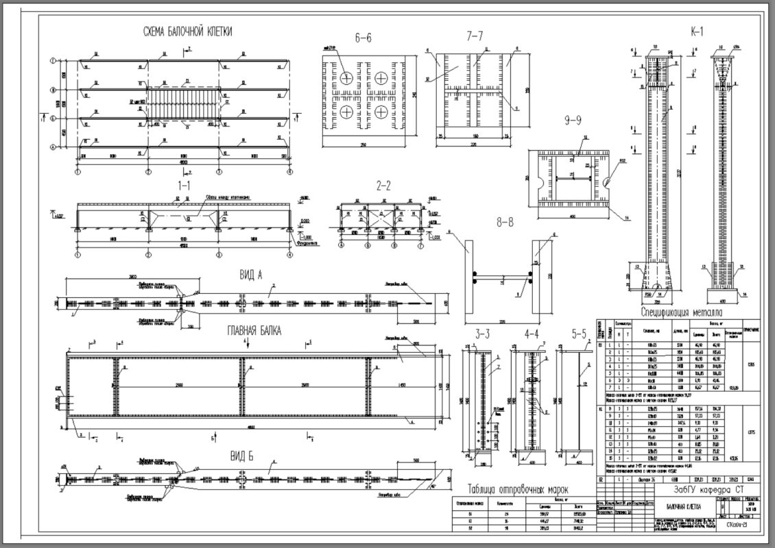
на чертеже несколько ошибок:
- на виде колонны К-1 в верху траверсы (поз.13) показана заводская сварка. на самом деле ее там нет. Да и вообще необходимость траверсы сомнительна;
- колонну либо приваривают по периметру к опорной плите расчетным швом, либо тщательно строгают и все равно приваривают, только уже конструктивным швом. Траверсу приваривают потом, повторюсь: при такой площади опорной плиты необходимость траверсы сомнительна;
- в нижнем поясе главной балки д.б. отверстия для болтов (крепление к колонне);
- вообще-то зависит от опорной реакции главной балки, но обычно торец опорного ребра строгают, а верхнюю опорную плиту на колонне фрезеруют;
- вертикальные связи обычно ставят по каждой оси. Как показано у вас, ставят только в случае крайней нужды, если при этом гарантировано надежное крепление жесткого диска настила;
- в колонне следует показать фасонки для крепления вертикальных связей;
-понятно, что это учебная задача, но в реале изменение сечения поясов главной балки в подобных конструкциях не делают - экономия металла копеечная, а возни много и дорого. Вот в массовых конструкциях (типа, например, рамы вагона или там автомобиля), там, где отлажена технология, где счет на тысячи и более - вот там да, изменения сечения выгодны.
Есть еще масса мелких замечаний.
Используя функцию входа через сторонние сервисы, Вы соглашаетесь на обработку персональных данных в соответствии с Политикой конфиденциальности