Перейти к содержимому
Войти

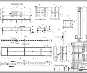
Балочная клетка и колоны рабочей площадки

0
132
1168
4
0
20

Харьковский национальный университет строительства и архитектуры
Кафедра МДК
Контрольная работат по дисциплине "Металлические конструкции"
Харьков, 2012

В данной работе представлены расчеты строительных конструкций - балочной клетки и колоны рабочей площадки. Выполнены чертежи этих конструкций.
Работа состоит из 1-го чертежа формата А2, пояснительной записки, состоящей из 13 страниц, 4х рисунков.

Пролет главной балки L = 11 м
Пролет балки настила l = 6 м
Шаг a = 1 м
Временную нагрузку pn = 25 кН / м2
отметка верха настила Н = 6 м
отметка верха фундамента h = -0.40 м


Сообщить о проблеме
Автор
user-avatar piyual
Дата
19.12.2015
Язык
Украинский
Состав
План на отм. + 6,000, Разрез 1-1,2-2, марки Б-1, Б-2, Спецификация
Софт
AutoCAD 2011 Как открыть?
Отзывов пока нет
Задать вопрос
Содержимое архива
  • icon-doc КМ.docx
  • icon-dwg Схема балочной клетки2.dwg
Чтобы скачать чертеж, 3D модель или проект, Вы должны зарегистрироваться и принять участие в жизни сайта. Посмотрите, как тут скачивать файлы
Отзывов пока нет
Чтобы оставить отзыв, необходимо войти
Войти с помощью:

Используя функцию входа через сторонние сервисы, Вы соглашаетесь на обработку персональных данных в соответствии с Политикой конфиденциальности