Перейти к содержимому
Войти

Расчётно-графическая работа на тему: Балочная клетка

0
0
101
1
0
30

Федеральное агентство по образованию
Архангельский государственный технический университет
Кафедра инженерных конструкций и архитектуры
Расчётно-графическая работа.
по дисциплине – «Металлические конструкции»
на тему: Балочная клетка
Архангельск 2009

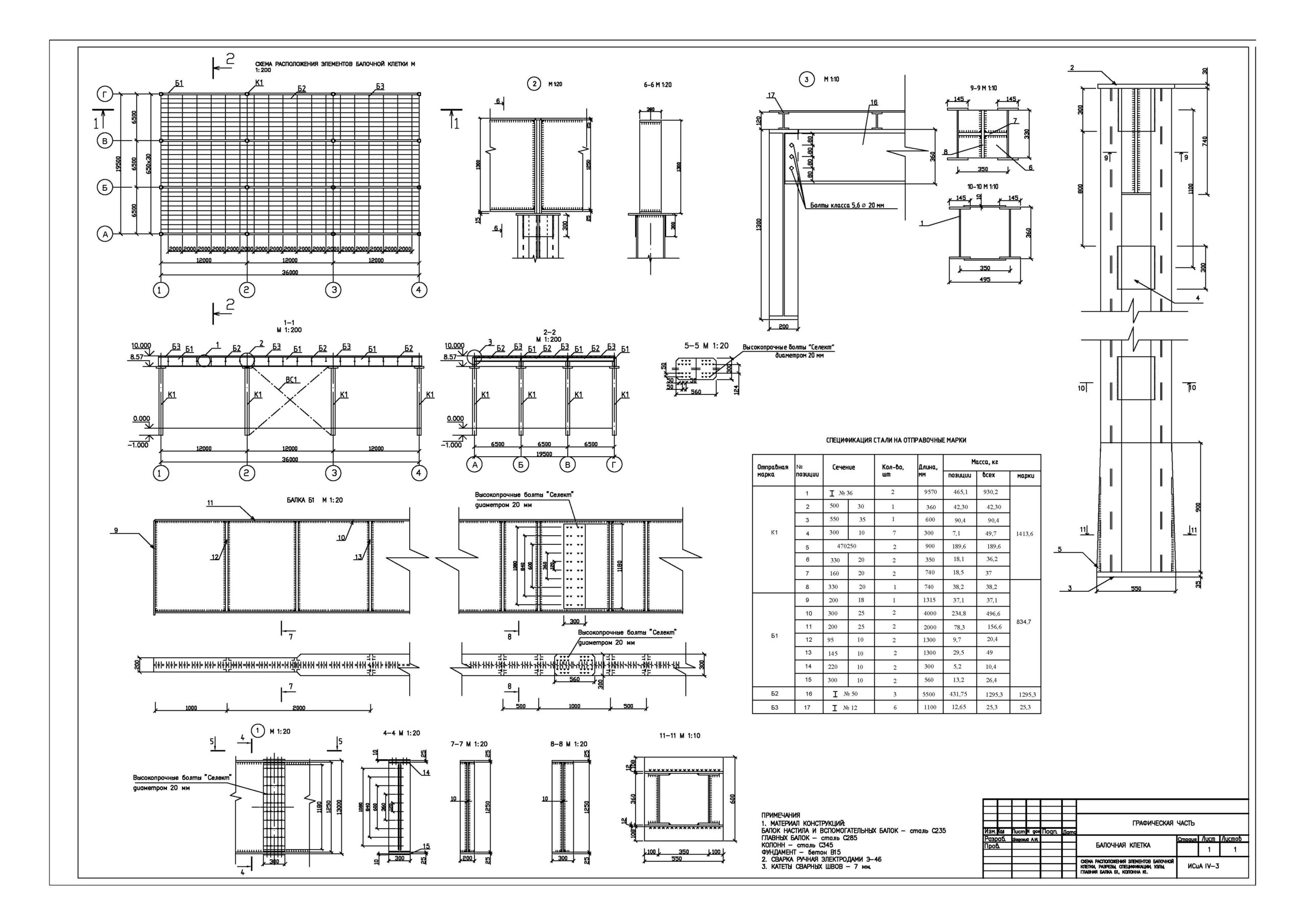
Расчет балочной клетки межэтажного перекрытия, расчёт несущих элементов (колонны,балки, плита).

Содержание
Содержание 2
1. Выбор схемы балочной клетки. 3
1.1 Нормальная балочная клетка. 3
1.2. Усложнённая балочная клетка. 4
2. Расход и конструирование главной балки. 7
2.1 Сбор нагрузок. 7
2.2 Определение высоты главной балки 7
2.3 Компоновка сечения. 8
2.4 Изменение сечения главной балки. 8
2.5 Проверка местной устойчивости балки. 9
2.6 Расчет узла сопряжения балок. 11
2.8 Проверка обеспеченности общей устойчивости балки. 12
3. Расчет центрально сжатой балки. 13
3.1 Определение расчетных длин и расчетных усилий. 13
3.2 Подбор сечения колонны. 13
3.4 Расчет базы колонны. 15
3.5 Расчет оголовка колонны. 16
Литература: 17


Сообщить о проблеме
Дата
25.11.2023
Язык
Русский
Состав
Расчётно графическая работа (металоконструкции) балочное перекрытие
Софт
AutoCAD 2012 Как открыть?
Отзывов пока нет
Задать вопрос
Содержимое архива
  • icon-doc Моё.doc
  • icon-dwg конец.dwg
Чтобы скачать чертеж, 3D модель или проект, Вы должны зарегистрироваться и принять участие в жизни сайта. Посмотрите, как тут скачивать файлы
Отзывов пока нет
Чтобы оставить отзыв, необходимо войти
Войти с помощью:

Используя функцию входа через сторонние сервисы, Вы соглашаетесь на обработку персональных данных в соответствии с Политикой конфиденциальности