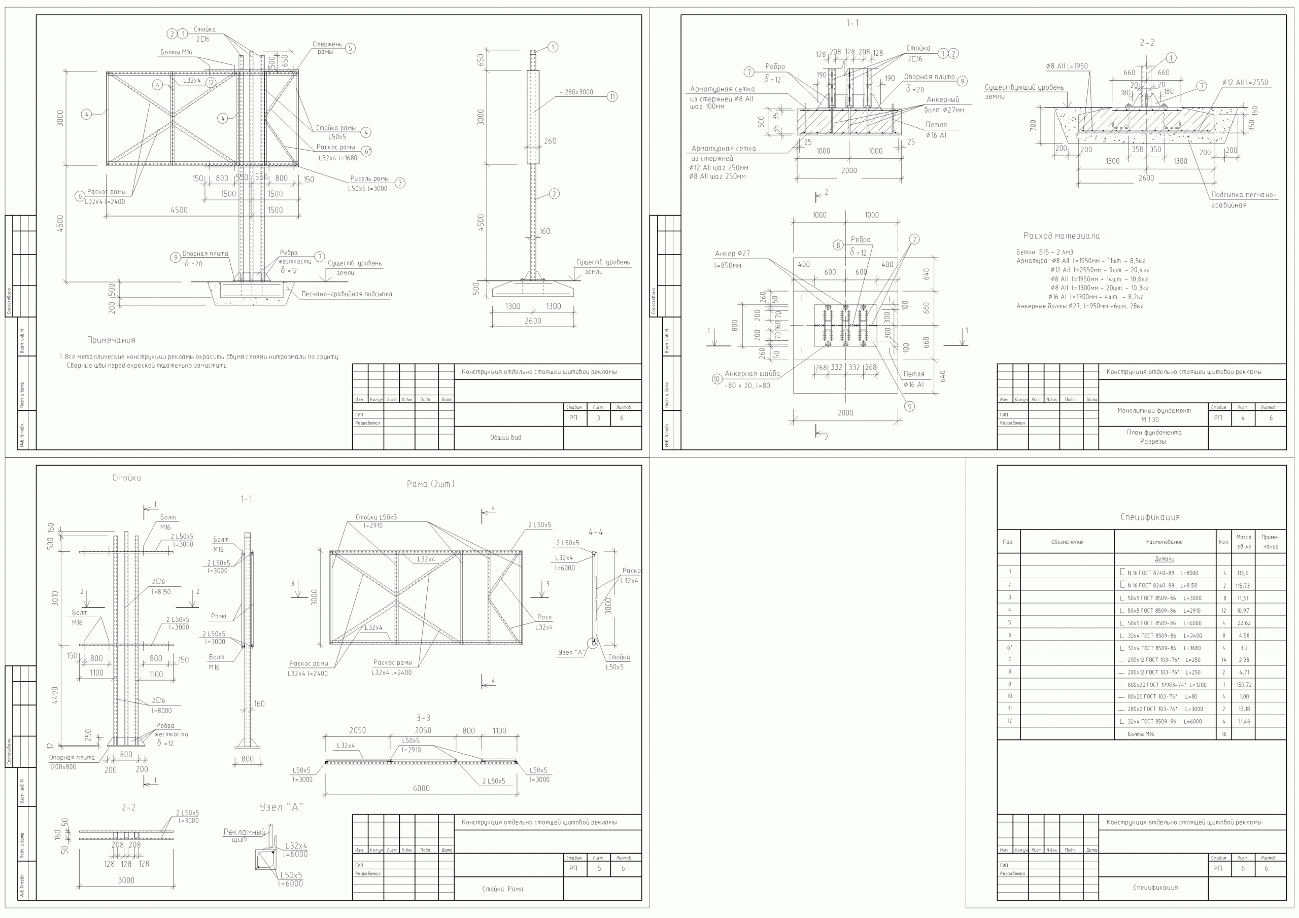
Рекламная конструкция (билборд) консольная. Размер щита 3х6м.
Выполнен расчет коснтрукций.
Климатические условия:
- II B климатический район РФ
- нормативный скоростной напор ветра 23 кг/м2.
- Главная -
- Чертежи -
- Строительство -
- Металлоконструкции -
- Рекламная конструкция (билборд) 3х6м
Рекламная конструкция (билборд) 3х6м
0
325
52531
19
0
100

Сообщить о проблеме
Автор
Дата
12.03.2015
Язык
Русский
Состав
Чертежи каркаса рекламной конструкции, фундамент, пояснительная записка (расчет)
Софт
AutoCAD 2007
Как открыть?
Отзывов пока нет
Содержимое архива
Чтобы скачать чертеж, 3D модель или проект, Вы должны зарегистрироваться
и принять участие в жизни сайта. Посмотрите, как тут скачивать
файлы
Отзывов пока нет
Чтобы задать вопрос, необходимо войти
Войти с помощью:
Ссылка на логин через google
Ссылка на логин через vk
Ссылка на логин через yandex