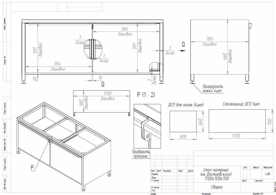
Стол слесарный 1700х700х700, столешница и полки под фанеру или металл.
- Главная -
- Чертежи -
- Строительство -
- Интерьер и мебель -
- Стол 1700х00х700
Стол 1700х00х700
0
0
16
0
0
60




#3DModeling #FirePitDesign #Wolves #SolidWorks #MetalArt #CADDesign #OutdoorDecor #EngineeringGraphics #WildlifeArt #HomeImprovement
3D Модели
Металл
слесарный
слесарный стол
Стол
Сообщить о проблеме
Автор
Дата
21.10.2025
Язык
Русский
Состав
Модель (step, parasolid), чертежи на сборку, раскрой профиля, dxf формат на лазер, чертеж на гибку.
Софт
STEP / IGES 2015
Отзывов пока нет
Содержимое архива
Чтобы скачать чертеж, 3D модель или проект, Вы должны зарегистрироваться
и принять участие в жизни сайта. Посмотрите, как тут скачивать
файлы
Задания с фриланса
1 неделя назад
3 недели назад
Сделать рабочий чертеж для изготовления эвакуаторной сдвижной платформы на базе камаз 4308
договорная
15 часов назад
Отзывов пока нет
Чтобы задать вопрос, необходимо войти
Войти с помощью:
Ссылка на логин через google
Ссылка на логин через vk
Ссылка на логин через yandex