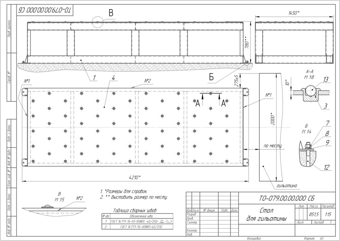
Стол подающий для гильотины (шариковый).
Габаритные размеры (ДхШхВ), мм: 4000х1450х780
Максимальная ширина листа, мм: 2000 мм.
- Главная -
- Чертежи -
- Строительство -
- Металлоконструкции -
- Стол подающий для гильотины (шариковый)
Стол подающий для гильотины (шариковый)
0
0
69
0
0
30
Сообщить о проблеме
Автор
Дата
09.02.2026
Язык
Русский
Состав
Сборочные чертежи (СБ), спецификации, чертежи согласно списка файлов
Софт
КОМПАС-3D 23
Как открыть?
Отзывов пока нет
Содержимое архива
-
-
-
-
ТО-079.01.01.000 Кронштейн.spw
-
ТО-079.01.01.000 СБ Кронштейн.cdw
-
ТО-079.01.01.001 Косынка.cdw
-
ТО-079.01.01.002 Пластина.cdw
-
-
ТО-079.01.00.000 Рама.spw
-
ТО-079.01.00.000 СБ Рама.cdw
-
ТО-079.01.00.002 Поперечина.cdw
-
ТО-079.01.00.005 Распорка.cdw
-
-
ТО-079.00.00.000 СБ Стол для гильотины.cdw
-
ТО-079.00.00.000 Стол для гильотины.spw
-
ТО-079.00.00.001 Стакан.cdw
-
ТО-079.00.00.002 Стол.cdw
-
Чтобы скачать чертеж, 3D модель или проект, Вы должны зарегистрироваться
и принять участие в жизни сайта. Посмотрите, как тут скачивать
файлы
Отзывов пока нет
Чтобы оставить отзыв, необходимо войти
Войти с помощью:
Используя функцию входа через сторонние сервисы, Вы соглашаетесь на обработку персональных данных в соответствии с Политикой конфиденциальности
Используя функцию входа через сторонние сервисы, Вы соглашаетесь на обработку персональных данных в соответствии с Политикой конфиденциальности