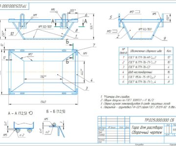
Тара для складирования стружки от токарных фрезерных станков и других отходов производства имеет проушины для перевертывания в кузов автотранспорта .
- Главная -
- Чертежи -
- Строительство -
- Металлоконструкции -
- Тара для стружки объемом 1.882м
Тара для стружки объемом 1.882м
0
6
564
3
0
60

Сообщить о проблеме
Автор
Дата
24.05.2018
Язык
Русский
Состав
Чертежи, модели, файлы на лазер, раскрой.
Софт
КОМПАС-3D 16
Как открыть?
Отзывов пока нет
Содержимое архива
Чтобы скачать чертеж, 3D модель или проект, Вы должны зарегистрироваться
и принять участие в жизни сайта. Посмотрите, как тут скачивать
файлы
Вопросы по теме
Отзывов пока нет
Чтобы задать вопрос, необходимо войти
Войти с помощью:
Ссылка на логин через google
Ссылка на логин через vk
Ссылка на логин через yandex