Перейти к содержимому
Войти

Проект производства работ на автоматизацию двух топливо раздаточных колонок 1РУ

0
20
500
1
0
40

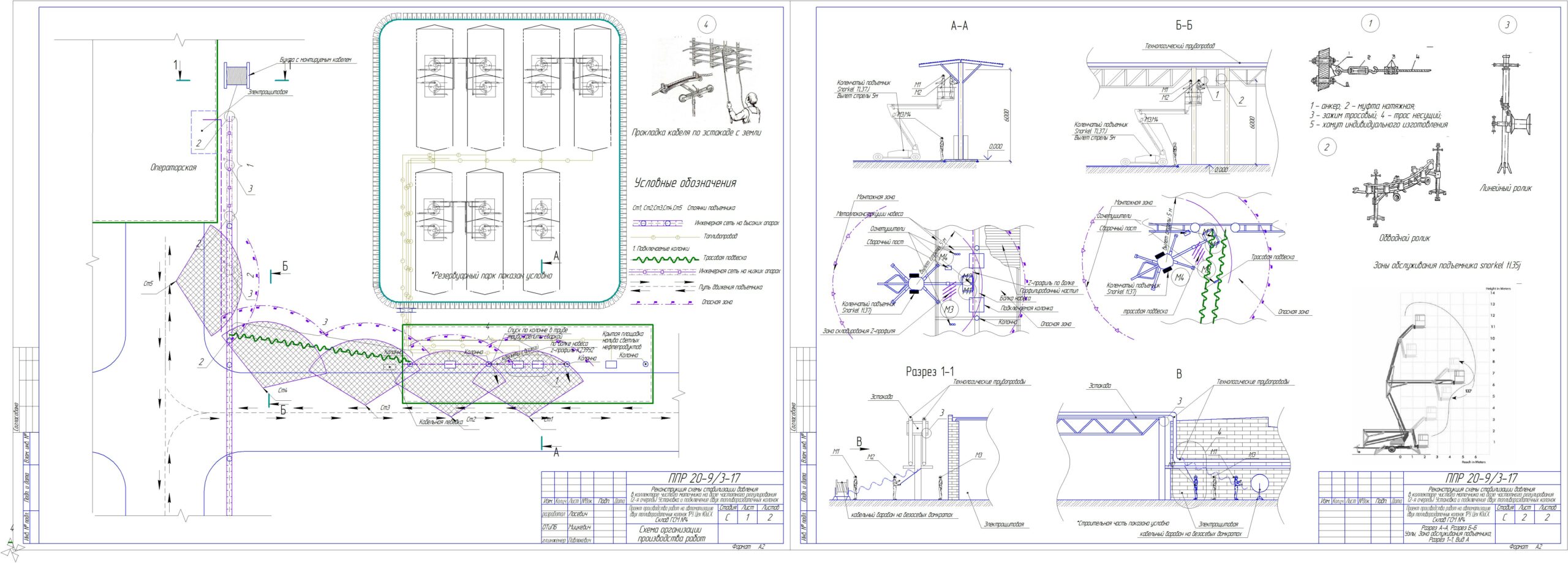
Проект производства работ на автоматизацию двух топливо раздаточных колонок 1РУ. Цех КОиСХ. Склад ГСМ №4 на объекте: «Реконструкция схемы стабилизации давления в коллекторе чистого маточника на базе частотного регулирования (2-я очередь)»

Строительная площадка (автоматизация двух топливораздаточных колонок) находится на действующем предприятии ОАО «Беларуськалий» 1Ру. Цех КОиСХ. Склад ГСМ№4. Подключаемые топливораздаточные колонки ТОПАЗ 611-11-1000/00 установлены под навесом на бетонном основании. Для подключения топливораздаточных колонок ТОПАЗ 611-11-1000/00 к ПЭВМ оператора используется преобразователь Моха USB в RS-485 Uport 1150i, устанавливаемый в шкафу управления ТРК. Преобразователь МОХА подключается к ПЭВМ оператора по средствам USB кабеля длиной 5м. В операторской устанавливается два переключателя выбора колонок Aparator 4G10-53-PK R014, которые служат для блокировки вновь устанавливаемых низко производительных колонок и существующих высокопроизводительных колонок.


Сообщить о проблеме
Дата
23.08.2017
Язык
Русский
Состав
Схема организации производства работ по автоматизации, ОПЗ
Софт
КОМПАС-3D 13 Как открыть?
Отзывов пока нет
Задать вопрос
Содержимое архива
  • icon-cdw ППР проклака кабеля колонки.cdw
  • icon-jpg ППР проклака кабеля колонки.jpg
  • icon-doc Титульный_лист.doc
  • icon-doc пояснялка на колонки.docx
Чтобы скачать чертеж, 3D модель или проект, Вы должны зарегистрироваться и принять участие в жизни сайта. Посмотрите, как тут скачивать файлы
Отзывов пока нет
Чтобы оставить отзыв, необходимо войти
Войти с помощью:

Используя функцию входа через сторонние сервисы, Вы соглашаетесь на обработку персональных данных в соответствии с Политикой конфиденциальности