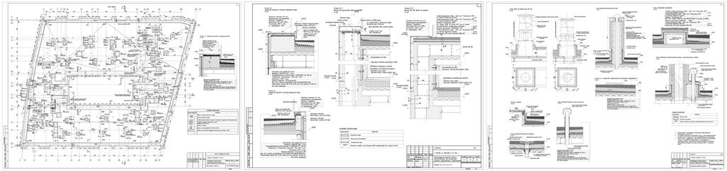
1.1. Настоящий проект производства работ разработан на монтаж системы неэксплуатируемой инверсионной крыши по бетонному основанию с битумно-полимерным кровельным ковром на объекте: «Реконструкция нежилого здания с приспособлением под гостиничный комплекс апартаментов с автостоянкой» по адресу: г. Москва, ................... Инверсионная кровля — это такой вид кровельной системы, при которой происходит чередование слоев (гидроизоляции, теплоизоляции) в обратном порядке. Такую кровлю называют еще балластной.
1.2. Инверсионные кровельные системы в своем пироге имеют балласт из щебня или гравия, который защищает гидроизоляционное покрытие от механического повреждения и негативного воздействия прямых солнечных лучей. Благодаря такому расположению кровельного пирога, срок службы рассматриваемой кровли увеличился до 25…30 лет, при условии соблюдения всей технологий монтажа.
1.3. При устройстве балластной кровли основной материал гидроизоляции - это мембраны Технониколь. Особенностью устройства при таком исполнении является то, что мембраны рулонных кровель спаиваются (свариваются) в единый гидроизоляционный кровельный ковер, но при этом не используется крепеж. Альтернативой крепежу является балласт (в данном случае, гравий), который прижимает пирог к подготовленному основанию и препятствует при воздействии усиленных ветровых нагрузок его смещению.
1.4. Если при эксплуатации инверсионная кровля будет испытывать на себе слабые нагрузки, пирог утеплителя можно покрыть сверху гравием, щебнем, или установить террасную доску. Такой тип крыши применяют в малоэтажном строительстве. Если необходимо, то на такой крыше возможно произвести устройство перголы и других конструкций из легких материалов.
1.5. Преимущество инверсионной кровли перед другими типами - это то, что он позволяет использовать дополнительную площадь. Благодаря усиленному защитному слою, который предохраняет гидроизоляционное покрытие от различного вида повреждений, срок службы данной кровли может достигать при соблюдении технологии монтажа до 45 лет. Монтаж кровли данного типа возможно проводить и в зимнее время.
- Главная -
- Чертежи -
- Строительство -
- Проекты производства работ и Технологические Карты -
- Проект производства работ на монтаж инверсионной кровли
Проект производства работ на монтаж инверсионной кровли
0
1
151
5
0
40

Сообщить о проблеме
Автор
Дата
02.04.2023
Язык
Русский
Состав
1. ОБЩЕЕ ПОЛОЖЕНИЕ 2 . ОСНОВНЫЕ ТРЕБОВАНИЯ ПРИ МОНТАЖЕ КРОВЛИ 3. УСТРОЙСТВО ПЛОСКОЙ ИНВЕРСИОННОЙ КРОВЛИ 4. МОНТАЖ ИНВЕРСИОННОЙ КРОВЛИ 5. ТЕХНИКА БЕЗОПАСНОСТИ ПРИ ВЫПОЛНЕНИИ КРОВЕЛЬНЫХ РАБОТ 6. ОХРАНА ОКРУЖАЮЩЕЙ СРЕДЫ 7. АЛЬБОМ УЗЛОВ
Софт
AutoCAD 2018
Как открыть?
Отзывов пока нет
Содержимое архива
Чтобы скачать чертеж, 3D модель или проект, Вы должны зарегистрироваться
и принять участие в жизни сайта. Посмотрите, как тут скачивать
файлы
Отзывов пока нет
Чтобы задать вопрос, необходимо войти
Войти с помощью:
Ссылка на логин через google
Ссылка на логин через vk
Ссылка на логин через yandex