Перейти к содержимому
Войти

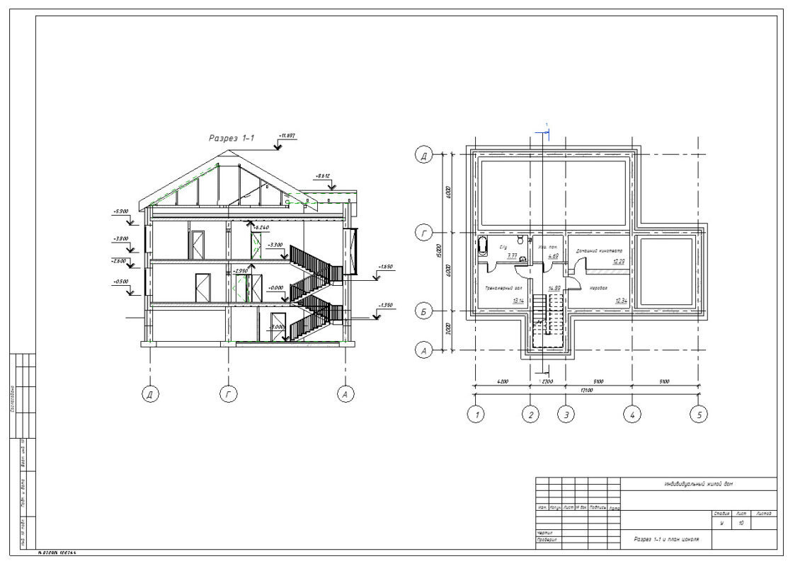
Индивидуальный жилой дом 15х17м

0
0
173
2
0
100

СПбГАСУ, Кафедра архитектурно-строительных конструкций, Архитектруно-стротельные конструкции, 2023г.

Исходными данными было количество этажей и тип кровли. В рамках задания были разработаны 1ый, 2ой этажи, подвал, фундамент, стропильная система кровли, план расположения балок перекрытия.
Размеры здания в осях 15х17,1 метров.


Сообщить о проблеме
Автор
user-avatar user-5263635
Дата
14.03.2026
Язык
Русский
Состав
3D модель, фасад в осях 1-5, фасад в осях Д-А, план 1-го этажа, план 2-го этажа, план подвала, план стропильной системы, план кровли, план фундамента, план балок перекрытия, разрез 1-1 по лестнице
Софт
Revit 2023
Отзывов пока нет
Задать вопрос
Содержимое архива
  • icon-rvt Индивидуальный жилой дом (Модель).rvt
Чтобы скачать чертеж, 3D модель или проект, Вы должны зарегистрироваться и принять участие в жизни сайта. Посмотрите, как тут скачивать файлы
Отзывов пока нет
Чтобы оставить отзыв, необходимо войти
Войти с помощью:

Используя функцию входа через сторонние сервисы, Вы соглашаетесь на обработку персональных данных в соответствии с Политикой конфиденциальности