коттедж 10х10 из газосиликатных блоков, двухэтажный, фасады, разрезы фундаменты, узлы, стропильная система, спецификации. Размеры жилого дома в осях 10.06х9.97 м. H1эт =2.9 м; Н манс.эт.=2,9 м, Н подвала.=2,6 м. Проект разработан для следующих климатических условий:
1. Расчетная зимняя температура - 36 °С
2. Нормативная снеговая нагрузка - 224 кг/м²
3. Нормативный скоростной напор ветра - 38 кг/м²
Расчетное сопротивление грунта (Rн) принято 1.5 кг/м³. Фундаменты жилого дома - ленточные, сборные из бетонных блоков по ГОСТ 13579-78 с заделками из керамического кирпича. Основание фундаментов выполнить из бетонной подготовки класса В7.5 толщиной 100 мм.
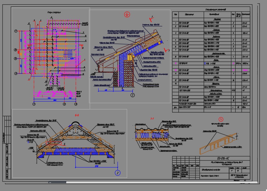
Кладку цоколя ниже гидроизоляционного слоя выполнить из полнотелого глиняного кирпича пластического прессования марки КР-р-по 250х120-65 1НФ/100/2.0/35/ГОСТ 530-2012 на цементно-песчаном растворе марки 75. Морозостойкость цокольной части должна быть не ниже Мр-70.
Наружные стены выполнить из газосиликатных блоков марки D400; В 2.5; F50 по ТУ 5741-001-15224739 -2005 на клею, с последующим утеплением плитами пенополистирольными (фасадными) ППС25 - 100 мм по ГОСТ 15588-2014, и облицовкой декоративным кирпичом по ГОСТ 530-2012.
Внутренние несущие стены выполнить из кирпича керамического полнотелого кирпича марки КР-р-по 250х120х65 1НФ/100/2.0/35/ГОСТ 530-2012 на цементно-песчаном растворе М 75 с последующей штукатуркой. Межкомнатные перегородки выполнить из пазогребневых плит 500х667х100 мм, перегородки в санузлах выполнить из пазогребневых плит влагостойких 500х667х100 мм по ТУ 5742-014-38719567-2012.
Перекрытие подвала - сборные железобетонные плиты по серии 1.141-1, в.63.
Перекрытие первого этажа - деревянное, по балкам.
Мансардный этаж имеет вид полувальмовой крыши, утепленние выполнено из металлочерепицы типа "Монтеррей" по ТУ 1112-059-00110473-2002, по деревянным наслонным стропилам и обрешетке из досок, утепленный из плит минераловатных на синтетическом связующем URSA П30 толщиной 100 мм по ТУ 5763-001-71451657-2004
Полы подвала - бетонные.
Полы первого этажа - уложены на железобетонные плиты перекрытия - электрические теплые, по плитам пенополистирольным толщ. 100 мм.
- Главная -
- Чертежи -
- Строительство -
- Проекты домов -
- Коттеджи и частные дома -
- Коттедж двухэтажный из газосиликатных блоков 10х10
Коттедж двухэтажный из газосиликатных блоков 10х10
0
1
58
0
0
500
Сообщить о проблеме
Автор
Дата
20.02.2026
Язык
Русский
Состав
раздел АС, 15 листов. Общие данные Фасад 1-3. Фасад 3-1. Фасад Г-А. Фасад А-Г План этажа на отм. 0.000. План этажа на отм. +2.900 ОК1-ОК3. Спецификация элементов заполнения проемов План этажа на отм. -2.610 План фундаментов. Разрез 4-4. Разрез 5-5 Схема раскладки фундаментных блоков по оси А, Г, Б, 3, 1, В, 2 План стропил. Разрез 3. Узел 4. План плит перекрытия. План кровли Разрез 1-1 (по лестнице) Разрез 8-8. Разрез 9-9 План перекрытия на отм. +2.950. Узлы примыканий. Схема вентиляционных каналов по оси "Б". Схема вентиляционных каналов по оси "Г" План перемычек на отм. 0.000. План перемычек на отм. +2.950. План перемычек на отм. -2.610 Входная группа по оси А; Г
Софт
AutoCAD 23
Как открыть?
Отзывов пока нет
Содержимое архива
-
АС коттедж.dwg
Чтобы скачать чертеж, 3D модель или проект, Вы должны зарегистрироваться
и принять участие в жизни сайта. Посмотрите, как тут скачивать
файлы
Отзывов пока нет
Чтобы оставить отзыв, необходимо войти
Войти с помощью:
Используя функцию входа через сторонние сервисы, Вы соглашаетесь на обработку персональных данных в соответствии с Политикой конфиденциальности
Используя функцию входа через сторонние сервисы, Вы соглашаетесь на обработку персональных данных в соответствии с Политикой конфиденциальности