Перейти к содержимому
Войти

Разработка архитектурно-конструктивной части проекта здания: Крупнопанельная 2-этажная жилая блок-секция на 6 квартир

0
0
62
1
0
30

Ярославский Градостроительный колледж,2024

Курсовой проект на тему:
Разработка архитектурно-конструктивной части проекта здания:
Крупнопанельная 2-этажная жилая блок-секция на 6 квартир

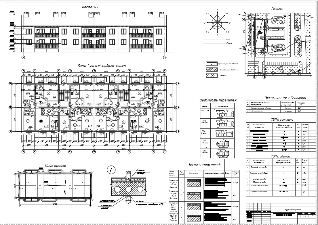
Крупнопанельная 2-этажная жилая блок-секция на 6 квартир разработан на основании задания и паспорта типового проекта «135-046с.85»
Проектирование и строительство ведется : район строительства город Пермь,Пермский край, климат умеренно континентальный, снеговой район 5-й, грунты суглинок. (В разных частях Перми встречаются как суглинки, так и супеси.)
Характеристика здания:

Размеры в плане – 37,2 м длина 37200 мм ; ширина 12,6 м длина 12600 мм
Высота здания – 8650 мм; высота этажа – 2800 мм.
Площадь застройки – 560м2
Наличие подвала или техподполья – имеется техподполье.
Основные и аварийные выходы из здания – Основной вход в здание находится на стене 37200 мм (оси 3-4,6-7 , ось В).Запасных выходов –не имеется
На основании объёмно-планировочного решения составлен ТЭП к зданию – вы сможете ознакомится с этим в курсовом проекте.
Конструктивная схема здания – Бескаркасная. Несущими конструкциями здания являются наружные стены и внутренние несущие стены шириной в 770мм (640 мм). Наружные несущие и самонесущие стены - внутренние продольные и поперечные стены, образующие квартиры, плиты перекрытия, фундамент, входной узел, техническое подполье, лестничный узел, техническое помещение и чердак.
Фундамент из ФБС блоков – разновидность ленточного фундамента.Ширина подошвы - 1200 мм и 800. ( ФБС блоки – выкладывают по периметру здания – т.е. по ФЛ (фундаментным плита) по возможности без зазоров)
Стены - из кирпича
Перегородки – пазогребневые.
Перекрытия Плиты перекрытия многопустотные. Длинна – 6280 мм, шириной - 1490 (1790, 790) (Как подбирают плит перекрытия - сначала 15-ые, т.е.1500 по ширине, а остальные добирают, т.е. основные плиты получаются- 15-ые).
Перемычки – сборные пр-1 – пр-8 (Подбор ,правила - к ширине проема в стене добавляют +130(т.е.четверть) и добавляют +250 – к ненесущим (на которые не ложат сверху плиты перекрытия) и + 500 к несущим стенам (те стены – на которых сверху лежат плиты перекрытия)
Последняя цифра в маркирвке перемычки- сколько кг она может нести,несуща способность)
Лестничные марши и площадки взял из ГОСТа. (см. чертежи)
Крыша – двускатная.
Кровля – металочерепица (толщина 3,5-5 мм)

1.1. Исходные данные для разработки архитектурно-строительного раздела.…….......................................................................................................................................
1.2. Генеральный план...................................................…………………….......................................
1.3. Роза ветров. Объемно-планировочная характеристика здания…...............
1.4. Конструктивная характеристика элементов здания..………………….…...............
1.5. Расчет глубины промерзания грунта........................................................................
1.6. Расчет лестницы.........................………………………….......................................………..............
1.7. Наружная и внутренняя отделка здания..........................................................…..
1.8. Инженерное оборудование.............…………………..…………....................................….…….....
1.9. Приложение ...........................................................................................................................
1.10. Список литературы....................…….………………………………………….........................….….....13


Сообщить о проблеме
Дата
01.12.2025
Язык
Русский
Состав
чертежи, Пояснительная записка
Софт
AutoCAD 2018-2020 Как открыть?
Отзывов пока нет
Задать вопрос
Содержимое архива
  • icon-dwg Крупнопанельная жилая блок-секция на 6 квартир (Типовой Проект 135-046с85).dwg
  • icon-dwg Пояснительная записка Крупнопанельная жилая блок-секция на 6 квартир.dwg
Чтобы скачать чертеж, 3D модель или проект, Вы должны зарегистрироваться и принять участие в жизни сайта. Посмотрите, как тут скачивать файлы
Отзывов пока нет
Чтобы оставить отзыв, необходимо войти
Войти с помощью:

Используя функцию входа через сторонние сервисы, Вы соглашаетесь на обработку персональных данных в соответствии с Политикой конфиденциальности