Перейти к содержимому
Войти

Многоэтажный жилой дом в г. Южно-Сахалинске Сахалинской области

0
1
193
1
0
200

ЮЗГУ
Кафедра "Промышленное и гражданское строительство"
ВКР на тему "Многоэтажный жилой дом в г. Южно-Сахалинске"
2020 г.

Содержание пояснительной записки:
ВВЕДЕНИЕ
Ведомость рабочих чертежей основного комплекта
Паспорт проекта
1. Архитектурно строительный раздел
1.1 Технико-экономическая характеристика района строительства
1.1.1 Природно-климатическая характеристика района строительства
1.2 Требования, предъявляемые к зданиям
1.2.1 Требования к объемно-планировочному решению здания
1.3 Разработка эскизов объемно-планировочного решения здания
1.4 Общая характеристика здания
1.4.1 Конструктивная система здания
1.4.2 Фундаменты
1.4.3 Несущие конструкции каркаса
1.4.4 Наружные стены. Теплотехнический расчет стены
1.4.5 Кровля. Теплотехнический расчет кровли
1.4.6 Перекрытия
1.4.7 Лестницы
1.4.8 Перегородки
1.4.9 Окна. Расчет сопротивления теплопередачи оконного блока
1.4.10 Двери
1.4.11 Полы
1.5 Генплан участка застройки
1.6 Технико-экономические показатели
2. Расчетно-конструктивный раздел
2.1 Исходные данные для проектирования лестничных конструкций
2.2 Сбор нагрузки
2.3 Подбор сечения арматуры в ступени лестничного марша
2.4 Расчет по бетонной полосе между наклонными сечениями лестничной ступени
2.5 Расчет по бетонной полосе между наклонными сечениями лестничной ступени
2.6 Расчет монолитных площадок лестничных клеток
2.7 Сбор нагрузки на монолитную площадку лестничной клетки
2.8 Подбор сечения арматуры в площадке лестничной клетки
2.9 Расчет по бетонной полосе между наклонными сечениями площадки лестничной клетки
2.10 Расчет косоуров
3. Организационно-технологический раздел
3.1 Область применения
3.2 Организация и технология производства работ
3.2.1 Опалубочные работы
3.2.2 Арматурные работы
3.2.3 Бетонирование стен и перекрытий
3.2.4 Уход за бетоном в летнее время
3.3 Контроль качества
3.4 Потребность в материально-технических ресурсах
3.5 Техника безопасности и охрана труда
3.5.1 Арматурные работы
3.5.2 Опалубочные работы
3.5.3 Бетонные работы
3.5.4 Уплотнение бетонной смеси
3.6 Технико-экономические показатели
3.6.1 Составление калькуляции трудовых затрат
3.6.2 График производства работ
3.6.3 Технико-экономические показатели
4. Экономика строительства
4.1 Определение стоимости работ по устройству типового этажа
5. Безопасность жизнедеятельности и экология
5.1 Техника Безопасности при устройстве и работе на лесах
5.2 Решение по технике безопасности
Заключение
СПИСОК ИСПОЛЬЗОВАННЫХ ИСТОЧНИКОВ

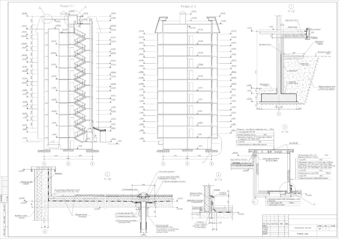
Жилой 9-ти этажный дом по ул. Комсомольской в г. Южно-Сахалинске – здание, прямоугольное в плане, состоящие из двух блок секций, с размерами в разбивочных осях 12,0 x 45,11 м.
Высота типового этажа составляет 2,9 м. Относительной отметке 0.000 соответствует уровень чистого пола 1-го этажа здания, соответствующий абсолютной отметке на генплане - 54,20.
Дом запроектирован с подвальным этажом (высота подвала 2,9 м), теплым чердаком (высотой чердачного этажа 1,6 м), лестничной клеткой, пассажирским лифтом, мусоропроводом, внутренним водостоком.
Всего в здании: 1-но комнатных - 18 квартир, 2-х комнатных – 18 квартир, 2-х комнатных – 18 квартир, 3-х комнатных – 18 квартир.
Конструктивная схема - рамная, состоящая из монолитных железобетонных стен, перекрытий и диафрагм жесткости (ядра жесткости лестниц и пассажирского лифта).


Сообщить о проблеме
Автор
user-avatar user-8714997
Дата
09.04.2026
Язык
Русский
Состав
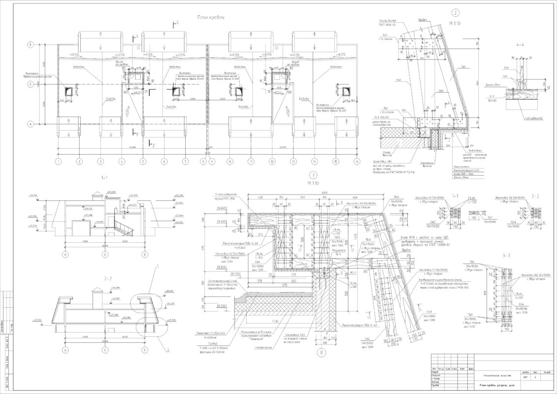
Лист 1 - Генеральный план. Лист 2 - Фасад 1-16, В-А. Лист 3 - Фасад 16-1, А-В. Лист 4 - Планы. Лист 5 - Разрезы, узлы. Лист 6 - Планы кровли, разрезы, узлы. Лист 7 - План полов. Лист 8 - План перегородок, ведомость отделки помещений. Лист 9 - Схема лестницы в осях В-Б и 5-4, Планы Разрезы. Лист 10 - Узлы, косоуры, ограждения. Лист 11 - Технологическая карта устройство типового этажа.
Софт
AutoCAD 2018 Как открыть?
Отзывов пока нет
Задать вопрос
Содержимое архива
    • icon-dwg Графическая часть.dwg
    • icon-doc Пояснительная записка.docx
    • icon-doc Содержание.doc
Чтобы скачать чертеж, 3D модель или проект, Вы должны зарегистрироваться и принять участие в жизни сайта. Посмотрите, как тут скачивать файлы
Отзывов пока нет
Чтобы оставить отзыв, необходимо войти
Войти с помощью:

Используя функцию входа через сторонние сервисы, Вы соглашаетесь на обработку персональных данных в соответствии с Политикой конфиденциальности