Перейти к содержимому
Войти

Проект жилого дома 7 этажей , г. Актау

2
3
460
1
0
100

Проект жилого дома 7 этажей, архитектурно-строительная часть, фундаменты ФБС блоки, стены и перегородки камень-ракушечник

Общие указания

Проект: «Строительство жилого дома" по адресу: Мангистауская область, г. Актау ».
В соответствии со СП РК 2.04-01-2017 "Строительная климатология" район строительства расположен в IVГ климатическом подрайоне. Температура воздуха наиболее холодной пятидневки (- 17оС). Для всех сооружений в соответствии со НТП РК 01-01-3.1 (4.1)-2017 "Нагрузки и воздействия на здания" приняты следующие характеристики по нагрузкам:
нормативная снеговая нагрузка - 0,5 кПа (50 кг/м2),
нормативное значение ветрового давления - 0,48 кПа (48 кг/м2),
нормативная глубина промерзания грунта - 80 см,
сейсмичность района строительства - 6 баллов. Территория г. Актау расположена в пределах плато Южный Мангышлак, на котором не проявляются тектонические явления и поэтому не является сейсмоактивной.
Жилой дом каменный 7-этажный и предусматривает подвальный этаж, жилые типовые этажи (1-7).
Высота подвального этажа в свету 2,6 м; высота жилых этажей от пола до потолка - 3,0 м.
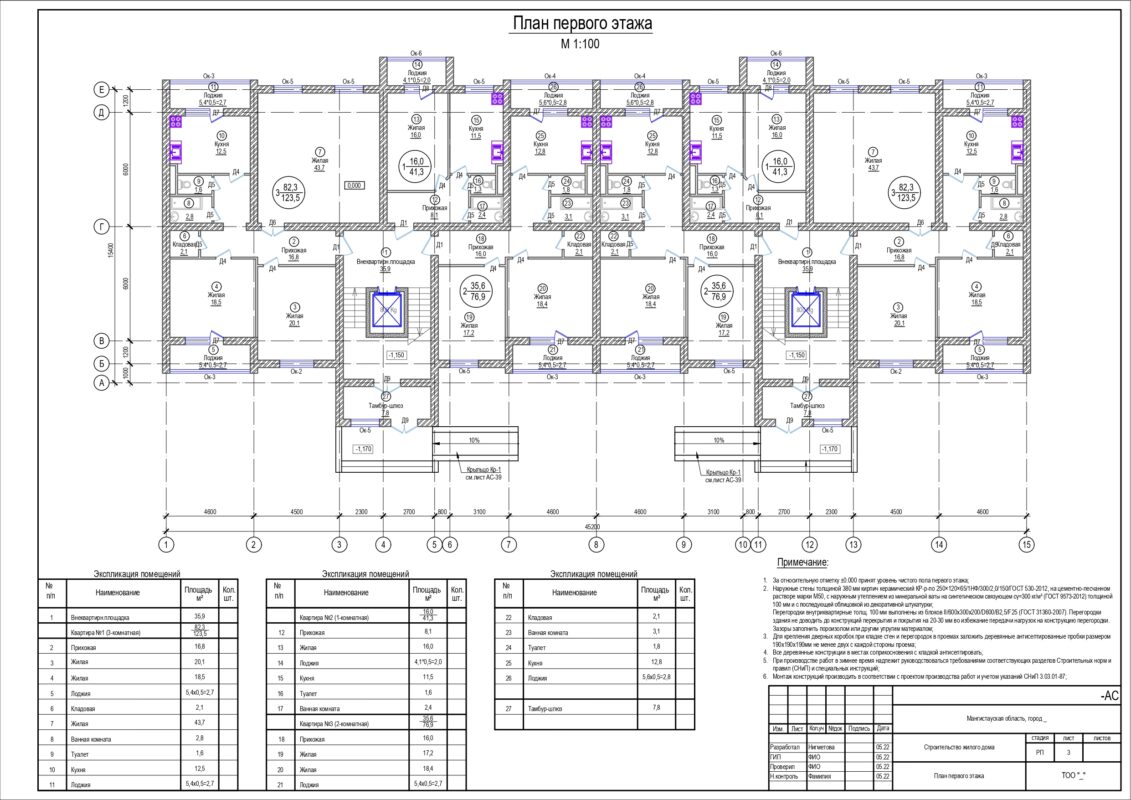
За относительную отметку ±0.000 принят уровень чистого пола 1-го этажа.
Состав и площади основных и вспомогательных помещений приняты в соответствии с указаниями СП РК 3.02-101-2012 "Здания жилые многоквартирные".
Все этажи композиционно и технологически объединены между собой по вертикали лестничной клеткой тип Л1.
Класс жилого дома - III.
Количество надземных этажей - 7
Уровень ответственности здания (сооружения) - II (технически несложный);
Класс конструктивной пожарной опасности здания - С0;
Класс функциональной пожарной опасности здания - Ф1.3;
Класс пожарной опасности строительных конструкций - К0;
Степень огнестойкости здания - II;
Защита от шума в помещениях обеспечивается применением ограждающих конструкций с требуемой звукоизоляцией. Наружные стены выполнены толщиной 380 мм из керамического кирпича КР-р-по 250×120×65/1НФ/300/2,0/150/ГОСТ 530-2012, которые обеспечивают оптимальный уровень изоляции воздушного шума и служат эффективным барьером от возможных шумовых и вибрационных воздействий.
Проектом предусмотрены следующие противопожарные мероприятия, а именно основные несущие конструкции выполнены из негорючего материала.
Конструктивная система - бескаркасная с продольными и поперечными несущими стенами из керамического кирпича жестко связанные с многопустотными плитами перекрытия.
Фундаменты из блоков ФБС по серии СТ РК 940-92 шириной 400 мм, установленные на железобетонную плиту высотой 300 мм из бетона С20/25, F100, W4 на сульфатастойком портландцементе. Под фундаментом выполнена подготовка из щебня толщиной 100 мм, пропитанного битумом до полного его насыщения. Горизонтальная гидроизоляция стен подвала выполнена из слоя цементного раствора М100, состава 1:2 на сульфатостойком портландцементе. Боковые поверхности бетонных конструкций, соприкасающихся с грунтом, обмазать горячим битумом БН-III за 2 раза по огрунтованной поверхности из 40 % раствора битума в керосине. Обратную засыпку пазух фундаментов и подсыпку выполняется местным грунтом с послойным уплотнением.
Наружные стены толщиной 380 мм из керамического кирпича КР-р-по 250×120×65/1НФ/300/2,0/150/ГОСТ 530-2012, на цементно-песчаном растворе марки М50, с наружным утеплением плитой из стеклянного штапельного волокна, 60 г/м3, 0.04 Вт/(м•°С) толщиной 70 мм и с последующей отделкой жидким травертином.
Внутренние стены толщиной 380 мм из керамического кирпича КР-р-по 250×120×65/1НФ/300/2,0/150/ГОСТ 530-2012, на цементно-песчаном растворе марки 50.
Перегородки меж квартирные толщ. 200 мм выполнены из блоков бетонного автоклавного II/600х200х200/D600/В2,5/F25 (ГОСТ 31360-2007). Перегородки толщ. 100 мм выполнены из блоков бетонного автоклавного II/600х100х200/D600/В2,5/F25 (ГОСТ 31360-2007). Перегородки армировать сеткой 5ВрI-75/5ВрI-100 через три ряда кладки.
Перегородки здания не доводить до конструкций перекрытия и покрытия на 20-30мм во избежание передачи нагрузок на конструкцию перегородки. Зазоры заполнить пароизолом или другим упругим материалом.
Перекрытия и покрытия из сборных железобетонных многопустотных плит по серии СТ РК 949-92.
Перемычки сборные железобетонные по серии 1.038.1-1 вып. 5.
Крыша здания – бесчердачная, с плоской рулонной кровлей и внутренним организованным водостоком. Кровля рулонная с защитным слоем из гравия с уклоном 1,5%. По периметру кровли предусмотрен парапет. Утепление производиться путем укладки утеплителя по покрытию - плиты мин.ватные на синтетическом вяжущем марки ПМ-50(НГ) ГОСТ 9573-2012 толщиной 150 мм с последующей цементно-песчаной стяжкой толщиной 30 мм по сетке.
Бетонную подготовку под полы выполнить из бетона на сульфатостойком портландцементе, согласно экспликации полов после прокладки всех коммуникаций, устройства фундаментов.
Окна - ПВХ. Двухкамерный стеклопакет, состоящий из трех листовых стекол толщиной по 4 мм марки M1, ширина дистанционных рамок по 12 мм, межстекольное пространство заполнено воздухом. Окна выполнить согласно ГОСТ 30674-99 с обязательным выполнением п.5.8.4 "В изделиях рекомендуется применять регулируемые петли, приборы для поворотно-откидного открывания, обеспечивающие щелевое проветривание, а также проветривание с регулируемым углом открывания, с использованием предохранителей от случайного открывания (в том числе при положении приборов в режиме проветривания)".
Двери наружные - металлические; двери внутренние - деревянные.
Ограждения лестниц, балкон, выполнить по ГОСТ 25772-83.
По периметру здания устраивается отмостка асфальтобетонная шириной 1500 мм из асфальтобетона по щебеночной подготовке пропитанной битумом.
Согласно СП РК 3.06-101-2012 "Проектирование зданий и сооружений с учетом доступности для маломобильных групп населения" каждый подъезд оснащен подъемниками для маломобильных групп населения. Перед лестницей входной группы за 0,6-0,8 м предусмотреть предупредительные тактильные полосы шириной от 0,3 м до 0,5 м. При входах в коммерческий этаж для инвалидов установить тактильную схему движения, отображающую информацию о помещениях в здании, немешающая основному потоку посетителей. Она должна размещаться с правой стороны по ходу движения на удалении от 3 м до 5 м. На основных путях движения предусмотреть тактильную направляющую полосу с высотой рисунка не более 0,025 м.
Металлоконструкции поставлять на строительную площадку в огрунтованном виде, после монтажа обработать составом "Казантикор-У" ТУ3510 РК 19594195 ТОО-05-2004.
При производстве работ в зимнее время руководствоваться требованиями соответствующих разделов Строительных норм и правил (СНиП) и специальных инструкций.
Монтаж конструкций производить в соответствии с проектом производства работ и учетом указаний СНИП 3.03.01-87.
В процессе производства строительно-монтажных работ должны соблюдаться правила техники безопасности согласно требований СНиП 12.03-99 "Безопасность труда в строительстве".


Сообщить о проблеме
Автор
user-avatar user-8212140
Дата
02.12.2025
Язык
Русский
Состав
АР
Софт
Отзывов пока нет
Задать вопрос
Содержимое архива
  • icon-dwg Жилой дом.dwg
Чтобы скачать чертеж, 3D модель или проект, Вы должны зарегистрироваться и принять участие в жизни сайта. Посмотрите, как тут скачивать файлы
Отзывов пока нет
Чтобы оставить отзыв, необходимо войти
Войти с помощью:

Используя функцию входа через сторонние сервисы, Вы соглашаетесь на обработку персональных данных в соответствии с Политикой конфиденциальности