Перейти к содержимому
Войти

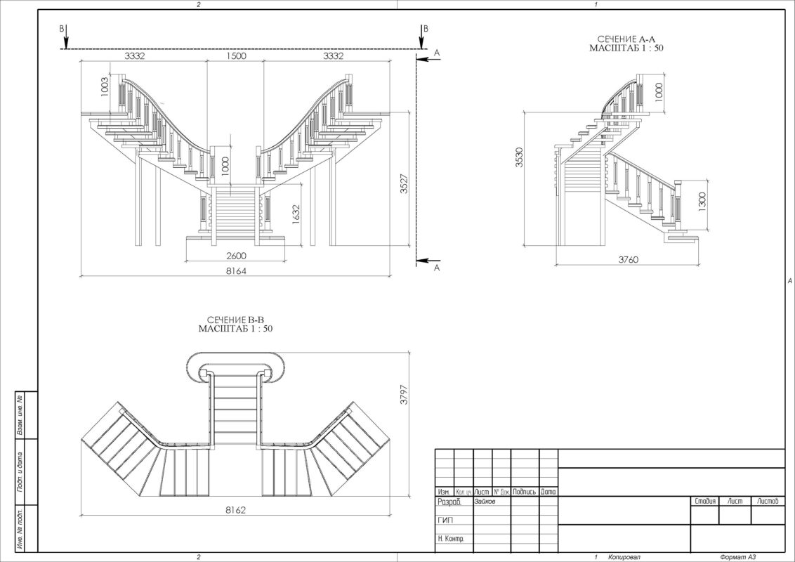
Лестница интерьерная с баллюстрадой

0
0
42
0
0
150

Лестница декоративная.
Единый нижний марш расходится на 2 симметричных марша от площадки.
Высота площадки 1.63м
Общая высота лестницы 3.53м
Габаритные размеры в плане: 8162х3760мм
Подъем ступени 176мм, ширина ступени 300мм.
Количество подъемов: 20


Сообщить о проблеме
Дата
07.02.2026
Язык
Русский
Состав
3D Модель
Софт
SolidWorks 23 Как открыть?
Отзывов пока нет
Задать вопрос
Содержимое архива
    • icon-sldprt Балка 1.SLDPRT
    • icon-sldprt Балка 2.SLDPRT
    • icon-dwg Балясина 1.DWG
    • icon-sldprt Балясина 1.SLDPRT
    • icon-sldprt Балясина 2.SLDPRT
    • icon-sldprt Балясина 3.SLDPRT
    • icon-sldprt Балясина 9.SLDPRT
    • icon-sldprt Балясина 10.SLDPRT
    • icon-sldprt Балясина 11.SLDPRT
    • icon-sldprt Балясина 12.SLDPRT
    • icon-sldprt Балясина 91.SLDPRT
    • icon-sldprt Балясина 92.SLDPRT
    • icon-sldprt Балясина 93.SLDPRT
    • icon-sldprt Балясина 94.SLDPRT
    • icon-sldprt Балясина 95.SLDPRT
    • icon-sldprt Балясина 96.SLDPRT
    • icon-sldprt Балясина 97.SLDPRT
    • icon-sldprt Балясина 98.SLDPRT
    • icon-sldprt Балясина 100.SLDPRT
    • icon-sldprt Балясина 101.SLDPRT
    • icon-sldprt Балясина 102.SLDPRT
    • icon-sldprt Балясина 103.SLDPRT
    • icon-sldprt Балясина 104.SLDPRT
    • icon-sldprt Балясина 105.SLDPRT
    • icon-sldprt Балясина 106.SLDPRT
    • icon-sldprt Балясина 107.SLDPRT
    • icon-sldprt Балясина 108.SLDPRT
    • icon-sldprt Деталь2.SLDPRT
    • icon-sldprt Деталь6.SLDPRT
    • icon-sldprt З-Деталь6.SLDPRT
    • icon-sldprt З-Ступень 5.SLDPRT
    • icon-sldprt З-Ступень 6.SLDPRT
    • icon-sldprt З-Ступень 7.SLDPRT
    • icon-sldprt Зеркало.SLDPRT
    • icon-sldprt Каркас.SLDPRT
    • icon-sldasm Каркас и стены.SLDASM
    • icon-sldprt Косаур.SLDPRT
    • icon-sldprt Косаур 2.SLDPRT
    • icon-sldprt Косаур 3.SLDPRT
    • icon-sldprt Косаур 4.SLDPRT
    • icon-sldprt Косаур 5.SLDPRT
    • icon-iges Лестница.IGS
    • icon-pdf Лестница в 3D.PDF
    • icon-jpg Лестница общие размеры.jpg
    • icon-pdf Лестница общие размеры.pdf
    • icon-iges Лестница с квадратными.IGS
    • icon-pdf Лестница с квадратными балясинами.PDF
    • icon-sldasm Лестница с квадратными балясинами.SLDASM
    • icon-slddrw Лестница с квадратными балясинами.SLDDRW
    • icon-iges Нижний марш.IGS
    • icon-pdf Нижний марш.PDF
    • icon-sldprt Опора.SLDPRT
    • icon-sldprt Перилка верхняя исходник.SLDPRT
    • icon-jpg Рендер лестницы 1.jpg
    • icon-sldprt Стены.SLDPRT
    • icon-sldprt Стойка 1.SLDPRT
    • icon-sldprt Стойка 2.SLDPRT
    • icon-sldprt Ступень 1.SLDPRT
    • icon-sldprt Ступень 2.SLDPRT
    • icon-sldprt Ступень 3.SLDPRT
    • icon-sldprt Ступень 4.SLDPRT
    • icon-sldprt Ступень 5.SLDPRT
    • icon-sldprt Ступень 6.SLDPRT
    • icon-sldprt Ступень 7.SLDPRT
    • icon-sldasm Ступень нижнего марша квадр.SLDASM
    • icon-sldprt зДеталь2.SLDPRT
    • icon-sldprt поручень.SLDPRT
    • icon-sldprt поручень 2.SLDPRT
    • icon-jpg рендер лестницы 2.jpg
    • icon-jpg рендер лестницы 3.jpg
    • icon-jpg рендер лестницы 4.jpg
Чтобы скачать чертеж, 3D модель или проект, Вы должны зарегистрироваться и принять участие в жизни сайта. Посмотрите, как тут скачивать файлы
Отзывов пока нет
Чтобы оставить отзыв, необходимо войти
Войти с помощью:

Используя функцию входа через сторонние сервисы, Вы соглашаетесь на обработку персональных данных в соответствии с Политикой конфиденциальности