Усиление плит перекрытия страховочными балками
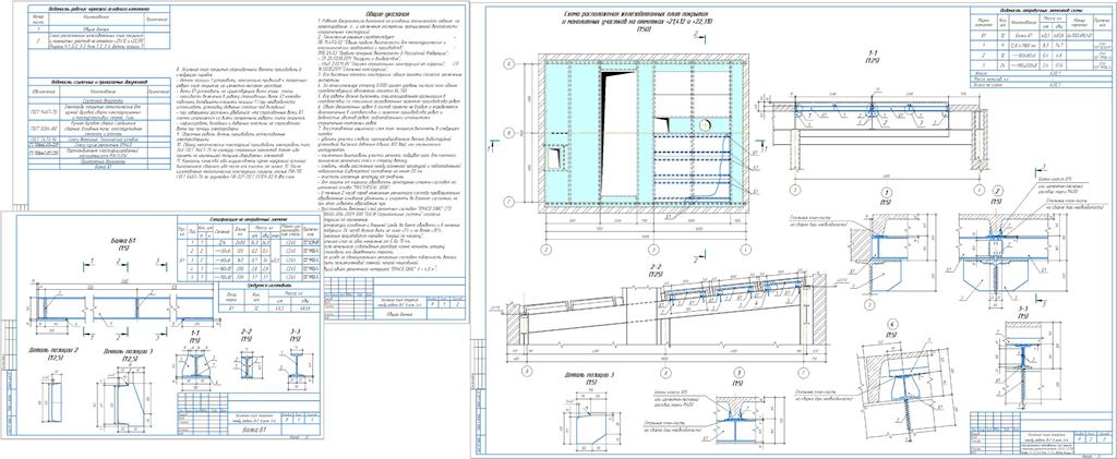
Схема с разрезами и узлами, балка б1, общие данные
- Главная -
- Чертежи -
- Строительство -
- Усиление плит перекрытия страховочными балками
Усиление плит перекрытия страховочными балками
0
0
8
0
0
40

Сообщить о проблеме
Автор

Дата
06.10.2025
Язык
Русский
Состав
Схема с разрезами и узлами, балка б1, общие данные
Софт
КОМПАС-3D 13
Как открыть?
Отзывов пока нет
Содержимое архива
Чтобы скачать чертеж, 3D модель или проект, Вы должны зарегистрироваться
и принять участие в жизни сайта. Посмотрите, как тут скачивать
файлы
Отзывов пока нет
Чтобы задать вопрос, необходимо войти
Войти с помощью:
Ссылка на логин через google
Ссылка на логин через vk
Ссылка на логин через yandex