Перейти к содержимому
Войти

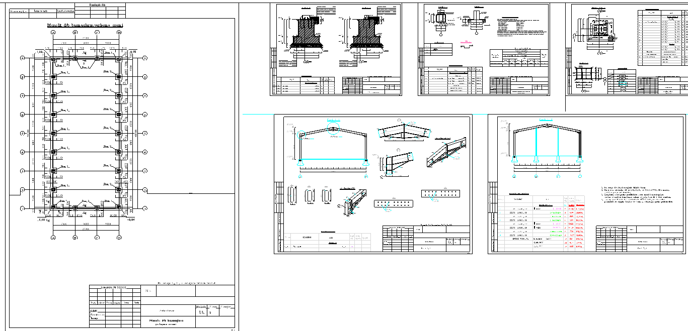
Здание склада 21х48м

0
73
570
0
0
50

Bakı ş. Nərimanov rayonu Ələsgər Qayıbov küçəsində yerləşən "Elektroterm" MMC-nin ərazisində anbar binası

Ümumi məlumatlar
1. Layihə sifarişçinin tapşırığı və memarlıq hissəsinə əsasən işlənmişdir.
2. Şərti 0,000 səviyyəsi binanın döşəməsi qəbul edilmişdir ki, оnunda mütləq qiyməti +0,20-ə bərabərdir.
3. Layihə aşağıdakı fiziki-klimatik göstəricilərə uyğun işlənmişdir.
Qar yükü (I rayon) -50,0 kq/m²
Külək yükü (V rayon) -60,0 kq/m
Hesabi seysmiklik 8 bal
4. Binanın bünövrəsi monolit d/b başmaq şəklində qəbul edilmişdir;.
- Karkasın elementləri-metal sütunlar,fermalar və rabitələrdən ibarətdir;
- Dam örtüyü metal tirlər üzrə proqonlardan ibarətdir və profnastillə örtülür;
5. Armatur milləri DÜİST 5781 - 82*-a7 uyğundur.
6. Monolit işlərini İNvəQ 3.03.01 - 87 bölmə 2 tikinti normasına uyğun yerinə yetirmək lazımdır;
7. Layihə AzDTN 2.3 - 1 -nin tələblərinə əsasən işlənməlidir.
8. Tikinti işləri yerinə yetirilərkən təhlükəsizlik normalarına riayət olunmalıdır


Сообщить о проблеме
Автор
user-avatar TOPUZ
Дата
20.04.2016
Язык
Азербайджанский
Состав
Проект: Планы, Фасады, Узлы
Софт
AutoCAD 2015 Как открыть?
Отзывов пока нет
Задать вопрос
Содержимое архива
  • icon-dwg ZAVOD 60x20,5 dwg.dwg
Чтобы скачать чертеж, 3D модель или проект, Вы должны зарегистрироваться и принять участие в жизни сайта. Посмотрите, как тут скачивать файлы
Отзывов пока нет
Чтобы оставить отзыв, необходимо войти
Войти с помощью:

Используя функцию входа через сторонние сервисы, Вы соглашаетесь на обработку персональных данных в соответствии с Политикой конфиденциальности