Перейти к содержимому
Войти

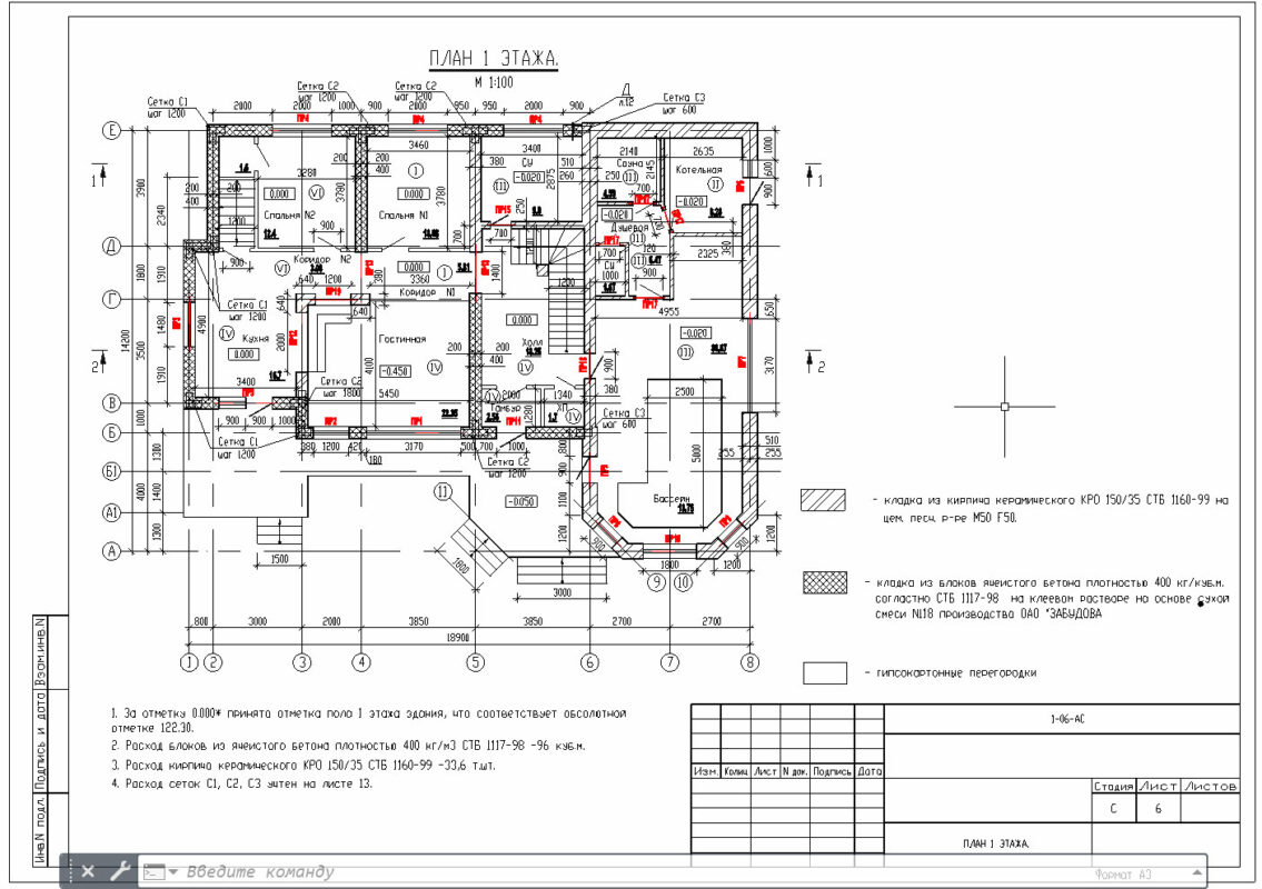
Жилой дом с мансардой 18м х 14м

0
336
4882
5
1
100

Чертежи фасада, фундаментов, перекрытия и кровли с узлами жилого дома с мансардой. Размерами 18мх14м

4. По данным инженерно-геологических изысканий, выполнены отделом изысканий в сентябре 2006 г., основанием под фундаменты жилого дома будут служить грунты со следующими характеристиками - пески мелкие средней плотности =1.98 г/куб.см; С =1.4 кПа; =31°; Е=17.0 МПа.
5. Грунтовые воды обнаружены на отм. -1.870, прогнозируемый уровень на 0,5-0,7 выше зафиксированных.
6. Нормативная глубина промерзания грунта - 1,21 м.
7. Грунты основания должны быть защищены от увлажнения поверхностными водами, а также промерзания в период строительства.
8. Непосредственно перед бетонированием опалубка должна быть очищена от мусора и грязи. Снятие опалубки производить после достижения бетоном 70% проектной прочности на сжатие.
9. Засыпку пазух фундаментов производить грунтом (в зимнее время только талым) без строительного мусора и органических примесей слоями по 150-200 мм с тщательным послойным трамбованием равномерно со всех сторон, не допуская односторонней нагрузки. Коэффициент уплотнения грунта Купл.=0.93.
10. Фундаментные блоки укладывать на цем. песч. р-ре М50 F50 с перевязкой швов глубиной не менее 300 мм.
11. Монолитные участки между блоками выполнить из бетона кл.С8/10F100.
12. Горизонтальную гидроизоляцию выполнить из слоя материала Г-ПХ-БЭ-пп/пп-0,3(СТБ1107-98) методом подавления покровного слоя по выровненному цементным раствором основанию. Стяжку огрунтовать битумом разжиженным бензином состава 1:2. Расход 0,2 кг./кв.м. Нахлест гидроизоляционного слоя не менее 0,1 м.
13. Вертикальную гидроизоляцию поверхностей фундаментов соприкасающихся с грунтом выполнить окраской горячей битумной мастикой БН 50/50 ГОСТ 6617-76 за два раза.
14. На схеме нагрузок в кружках обозначены расчетные сечения "Расчетов" по программному комплексу проектирования ленточных фундаментов на ПЭВМ "ЛИСТОПАД".
15. Не допускается устройство фундаментов на промкрзшем основании.
16. Фундаменты выполнять монолитными из бетона класса С8/10 F75.
17. Под подошвой фундаментов выполнить уплотненную подушку из щебня (см. сеч).
18. Траншеи под щебеночные подушки выполнять вручную, соблюдая их геометрические размеры.
19. На уровне подошвы, по периметру фундаментов заложить арматуру ∅ 10 S240(A240) и вывести на 0,5 м от поверхности земли (заземление).


Сообщить о проблеме
Дата
29.04.2013
Язык
Русский
Состав
Архитектурно строительные (АС)
Софт
AutoCAD, DWG Как открыть?
Отзывов пока нет
Задать вопрос
Содержимое архива
  • icon-dwg Жилой дом с мансардой 18х14.dwg
Чтобы скачать чертеж, 3D модель или проект, Вы должны зарегистрироваться и принять участие в жизни сайта. Посмотрите, как тут скачивать файлы
Отзывов пока нет
Чтобы оставить отзыв, необходимо войти
Войти с помощью:

Используя функцию входа через сторонние сервисы, Вы соглашаетесь на обработку персональных данных в соответствии с Политикой конфиденциальности