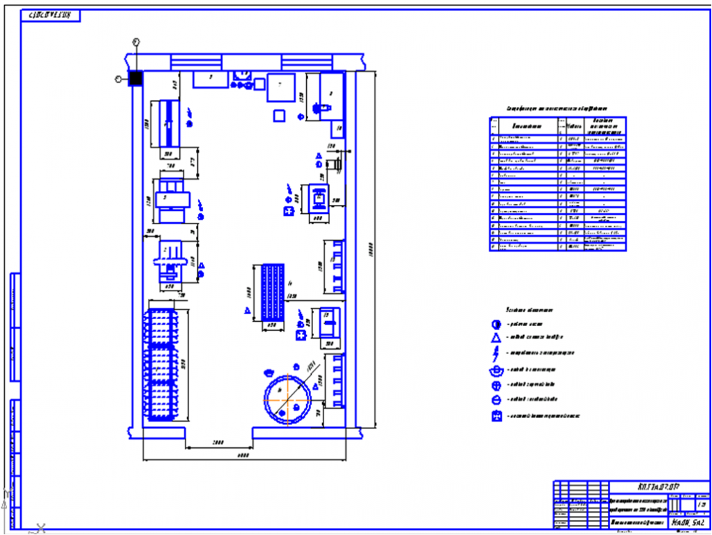
Чертеж шиномонтажки. В формате Компас. Зачетная работа.
- Главная -
- Чертежи -
- Транспорт -
- Автосервис и автомобильное хозяйство -
- Чертеж шиномонтажки
Чертеж шиномонтажки
0
194
2837
3
0
40
Сообщить о проблеме
Автор
Дата
27.04.2012
Язык
Русский
Состав
Чертеж
Софт
КОМПАС-3D 12
Как открыть?
Отзывов пока нет
Содержимое архива
-
shinomontazh_uchastok_avtobus_parka.cdw
Чтобы скачать чертеж, 3D модель или проект, Вы должны зарегистрироваться
и принять участие в жизни сайта. Посмотрите, как тут скачивать
файлы
Отзывов пока нет
Чтобы оставить отзыв, необходимо войти
Войти с помощью:
Используя функцию входа через сторонние сервисы, Вы соглашаетесь на обработку персональных данных в соответствии с Политикой конфиденциальности
Используя функцию входа через сторонние сервисы, Вы соглашаетесь на обработку персональных данных в соответствии с Политикой конфиденциальности