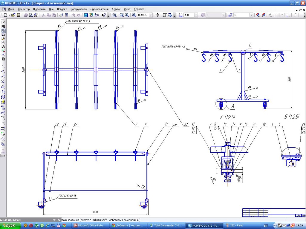
Приспособление для лучшего окрашивания агрегатов.
- Главная -
- Чертежи -
- Транспорт -
- Автосервис и автомобильное хозяйство -
- Навеска для покраски деталей
Навеска для покраски деталей
0
423
45365
30
3
50

Сообщить о проблеме
Автор
Дата
01.02.2013
Язык
Русский
Состав
Сборочный чертеж(СБ), Деталировка
Софт
КОМПАС-3D
Как открыть?
Отзывов пока нет
Содержимое архива
Чтобы скачать чертеж, 3D модель или проект, Вы должны зарегистрироваться
и принять участие в жизни сайта. Посмотрите, как тут скачивать
файлы
Отзывов пока нет
Чтобы задать вопрос, необходимо войти
Войти с помощью:
Ссылка на логин через google
Ссылка на логин через vk
Ссылка на логин через yandex