Перейти к содержимому
Войти

Организация технологического процесса обслуживания легковых автомобилей на базе СТО «Автогород’OK» с проектированием участка по ремонту электрооборудования

0
2
1320
11
0
100

Высший Колледж города Кокшетау
Техническое обслуживание, ремонт и эксплуатация автомобильного транспорта
Курсовой проект по дисциплине: «Проектирование авторемонтных предприятий»
на тему: «Организация технологического процесса обслуживания легковых автомобилей на базе СТО «Автогород’OK» с проектированием участка по ремонту электрооборудования»
Кокшетау 2018

исходные данные:
Численность населения обслуживае-мого района, чел :10700;
Среднее число легковых автомобилей
на
1000 жителей: 670
Среднегодовой пробег одного легкового автомобиля, км: 42500
% владельцев, пользующих-ся услугами СТО: 76
Клима-тический район: холодный

В данном работе проектируется участок по ремонту электрооборудования

Содержание
1 введение
2 Технологическое проектирование СТО
2.1 Организация технологических процессов ТО и ТР автомобилей
2.2 Расчет производственной программы
2.3 Корректирование трудоемкостей обслуживания автомобилей на СТО
2.4 Расчет годового объема работ
2.5 Распределение годового объема работ СТО по видам и месту выполнения
2.6 Расчет постов и автомобиле-мест
2.7 Расчет численности ремонтных рабочих
2.8 Расчет площадей производственных зон
3 Выбор технологического оборудования
4 Охрана труда, техника безопасности и экологичность проекта
5 Маркетинговые исследования на рынке транспортных услуг
6 Заключение
7 Список использованной литературы


Сообщить о проблеме
Дата
26.03.2018
Язык
Русский
Состав
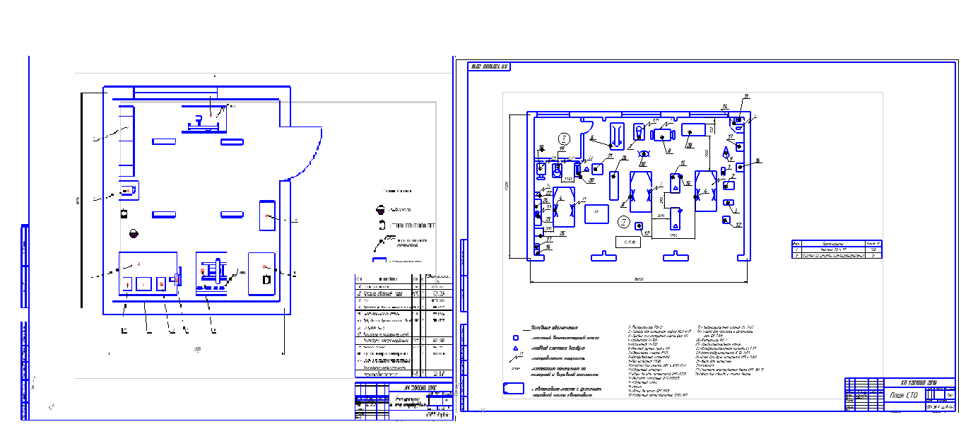
План участка по ремонту электрооборудования
Софт
КОМПАС-3D V16 x64 Как открыть?
Отзывов пока нет
Задать вопрос
Содержимое архива
    • icon-doc Аукеев М.Е. Проектирование участка по ремонту электрооборудования.docx
    • icon-ppt Аукеев М. презентация.pptx
    • icon-cdw ГенПлан СТО.cdw
    • icon-cdw участок по ремонту электрооборудования.cdw
Чтобы скачать чертеж, 3D модель или проект, Вы должны зарегистрироваться и принять участие в жизни сайта. Посмотрите, как тут скачивать файлы
Отзывов пока нет
Чтобы оставить отзыв, необходимо войти
Войти с помощью:

Используя функцию входа через сторонние сервисы, Вы соглашаетесь на обработку персональных данных в соответствии с Политикой конфиденциальности