Перейти к содержимому
Войти

Организация технологического процесса ремонта рулевого механизма автомобиля ЗиЛ-130, с разработкой карты на восстановление вала.

0
140
2918
16
0
40

Курсовой проект
По дисциплине: "Ремонт дорожных машин, автомобилей и тракторов."
Тема: "Организация технологического процесса ремонта рулевого механизма автомобиля ЗиЛ-130, с разработкой карты на восстановление вала."

В данной работе вы найдете пояснительную записку освещающую вопросы курсового проекта:

Введение………………………………………………………………………………………… 4
1 Общая часть…………………………………………………………………………………….. 5
2 Организационно-технологическая часть……………………………………………………... 7
2.1 Расчет годового объема работ…………………………………………………………….. 7
2.2 Расчет числа производственных рабо-чих………………………………………………… 7
2.3 Подбор необходимого технологического оборудова-ния………………………………... 9
2.4 Проектирование ремонтного участка…………………………………………………….. 12
2.5 Составление маршрута восстановления дета-ли………………………………………….. 13
3 Техническое нормирование технологического процесса…………………………………… 16
3.1 Наплавочная операция в среде СО2………………………………………………………. 16
3.2 Термическая операция, отжиг…………………………………………………………….. 19
3.3 Фрезерная операция…………………………………………………………………….…. 20
3.4 Шлифование финишное…………………………………………………………………… 22
3.5 Термическая операция. Закалка…………………………………………………………… 24
4 Конструкторская часть………………………………………………………………………… 26
Заключение ………………………………………………………………………………………. 27
Приложения А……………………………………………………………………………………. 28
Список использованных источни-ков…………………………………………………………… 29

А так же:

Графическая часть проекта:
1 Лист (А2) – Сборочный чертеж рулевого механизма ЗИЛ-130
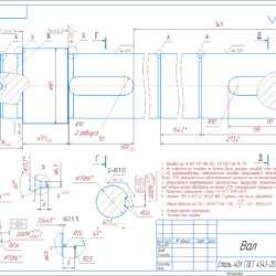
2 Лист (А3) – Рабочий чертеж детали Вал рулевого механизма ЗИЛ-130
3 Лист (А3) – ТУ на контроль-сортировку детали
4 Лист (А3) – Карта эскизов
5 Лист (А3) – Операционная карта
6 Лист (А2) – Приспособление
7 Лист (А3) - План ремонтного участка


Сообщить о проблеме
Автор
user-avatar антон
Дата
04.06.2014
Язык
Русский
Состав
Пояснительная записка (ПЗ), Сборочный чертеж рулевого механизма (СБ), рабочий чертеж детали, технические условия на контроль-сортировку детали, карта эскизов, операционная карта, приспособление для сборки и разборки рулевого механизма, план участка (ПУ)
Софт
Отзывов пока нет
Задать вопрос
Содержимое архива
    • icon-dwg КуПр(Ц+С).dwg
    • icon-dwg КуПр1.dwg
    • icon-dwg КуПр2.dwg
    • icon-doc КуПрЗ.doc
Чтобы скачать чертеж, 3D модель или проект, Вы должны зарегистрироваться и принять участие в жизни сайта. Посмотрите, как тут скачивать файлы
Отзывов пока нет
Чтобы оставить отзыв, необходимо войти
Войти с помощью:

Используя функцию входа через сторонние сервисы, Вы соглашаетесь на обработку персональных данных в соответствии с Политикой конфиденциальности