Перейти к содержимому
Войти

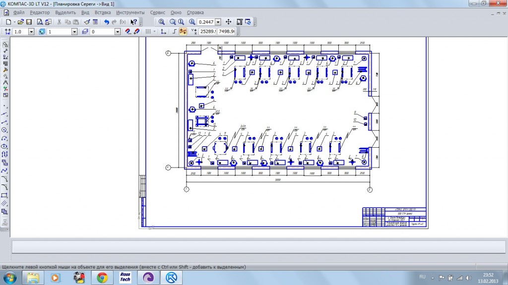
Планировка CTK CENTER Nissan

0
214
1987
4
0
40

CTK CENTER — официальный дилер Nissan. Отвечая всем корпоративным требованиям Компании, CTK CENTER предлагает Вам полный спектр услуг по продаже и техническому обслуживанию автомобилей марки Nissan.

ООО "СТК Центр" г. Санкт-Петербург пр. Косыгина, д.2/1
Планировочное решение учсастка ТО и ремонта
Группа КТ-45


Сообщить о проблеме
Дата
15.02.2013
Язык
Русский
Состав
Планировка СТО , Участок СТО, спецификация
Софт
КОМПАС-3D 12 Как открыть?
Отзывов пока нет
Задать вопрос
Содержимое архива
    • icon-cdw Планировка.cdw
    • icon-cdw Спецификация ТО и ТР.cdw
Чтобы скачать чертеж, 3D модель или проект, Вы должны зарегистрироваться и принять участие в жизни сайта. Посмотрите, как тут скачивать файлы
Отзывов пока нет
Чтобы оставить отзыв, необходимо войти
Войти с помощью:

Используя функцию входа через сторонние сервисы, Вы соглашаетесь на обработку персональных данных в соответствии с Политикой конфиденциальности